Buchanan Residence

Buchanan, Mich.

1 MIN READ

If you were to do a cursory examination of the housing landscape, you’d find that some of the coolest houses out there are architects’ own residences. This sustainable home in Southwest Michigan, which serves as a rural retreat for Chicago-based architect Walt Eckenhoff, is one example. Rooted in the tradition of Midwestern sheds and barns, it comes across as an outgrowth of its agrarian surroundings.

Because of its remote location, the architect had carpenter friends prefabricate the walls, floor, and roof sections in a Chicago warehouse and had the panels delivered to the site. “To get a head start on construction, prefabrication occurred during the winter while the driveway, power, and foundations were being installed on site,” he says.

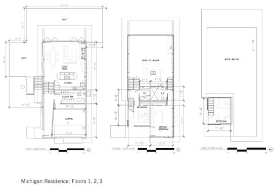
Eckenhoff sited the three-level house to preserve the beauty of the 20-acre property, removing only four trees, which were used for interior millwork. The open-plan main floor is dominated by a double-height space with two levels of bedrooms above. Glass panels bathe the interior in light and permit views to the water. “The large sliding glass doors leading onto 1,200 square feet of deck almost double the house area in spring, summer, and fall months when the doors are open,” the architect says. In the rural tradition, pre-stained plywood with cedar vertical battens and a corrugated metal roof cover the home.

Project Details

Grand

Category Green/Sustainable home
Entrant/Developer/Architect Eckenhoff Saunders Architects, Chicago
Builder Roncone and Sons, Lindenhurst, Ill.


In addition to sensitive siting and factory prefabrication, the home is oriented for passive solar heating and features a closed-cell-foam—insulated shell and a geothermal heating and cooling system. The green features paid off: Utility costs average less than $50 per month.

Learn more about markets featured in this article: Chicago, IL.

About the Author

Upcoming Events

  • Protecto Wall VP Standard Installation Video

    Webinar

    Register for Free
  • How Right-Sized Plumbing Saves Money, Saves Water, and Protects Wellness

    Webinar

    Register for Free
  • Building Careers from the Ground Up: The IUPAT Floor Covering Apprenticeship and Training Program

    Webinar

    Register for Free
All Events