Builder’s 2012 Concept Homes: Gen B

For empty-nesters, it’s about scaling down and having fun, with room for kids, grandkids, and friends to visit on holidays and weekends.

5 MIN READ

Builder Concept Home 2012: Gen XYB, A Multigenerational Community

Location Orlando, Fla.
Home size 4,732 square feet (Gen X); 2,163 square feet (Gen Y); 2,866 square feet (Gen B)
Lot Sizes 70 x 125 feet
Architects Tony Weremeichik, Canin Associates, Orlando (Gen X); Michael Woodley, Woodley Architectural Group, Denver (Gen Y and B)
Builder Centerline Homes, Coral Springs, Fla.
Interior designer/Furnishings/Merchandising Kay Green Design, Orlando
Landscape designer Tony Weremeichik, Canin Associates, Orlando
Pool designer Dixie Pools and Spas, Orlando
Cost per square foot $64 (Gen X); $68 (Gen Y); $66 (Gen B)
Anticipated sale price (approximate) $450,000 (Gen x); $300,000 (Gen Y); $375,000 (Gen B)


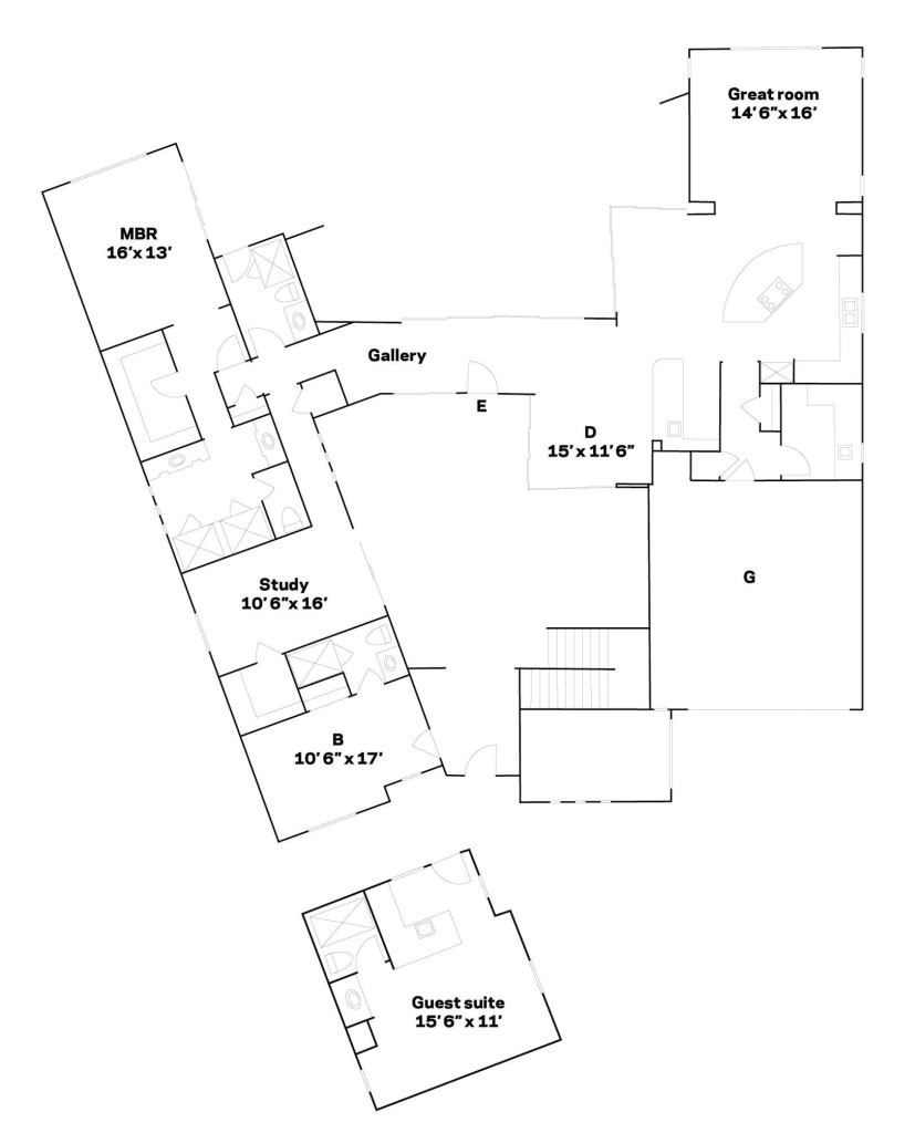
The generation portrayed in the movie “The Big Chill” is ready to do some serious chilling after years of hard work. To design a haven that’s geared to winding down—but not slowing down—Builder turned to award-winning architect Michael Woodley, who observes that buyers at this stage of life usually have grown children and need to worry much less about choosing a house that caters to their family’s needs. In addition to working hard at their careers, buyers in this group have put heart and soul into rearing kids. It’s quite likely they’ve cared for aging parents, too (there’s a good reason Boomers are sometimes called the Sandwich Generation). “It’s their time, and they want to celebrate,” says Woodley. “Like the Gen Y and Gen X homes, this one flows beautifully for entertaining,” says Osterman of Centerline Homes. “Everything about this house says, ‘Let’s party,’” he adds. Walk into the courtyard: It’s both entry and lounge space, complete with a fountain, fire pit, and seating area. Step inside for a kitchen that’s a foodie’s dream and this home’s true heart. A tapered work island anchors the room. With a five-burner cooktop, it’s perfect for channeling your inner Iron Chef. The kitchen has its own bar area with seating and plenty of wine storage. The living room, both cozy and open, is perfectly set right near the action. C’mon outside: A tiled pool, hot tub, and swim-up bar offer plenty of room for hanging out, sunbathing, drinks, and snacks. For a dramatic touch come nightfall, a second fire pit lines the far edge of the pool.

In this house, the less visible spaces are just as inviting as the open ones. The laundry room, just off the kitchen, offers pantry storage, stacked washers, and a roomy sink for hand-washing. The master bedroom has sliding doors that lead out to the pool and its master bathroom has a deluxe-sized double shower. In the study, there’s even a secret storage space hidden behind a fake wall that’s made for hiding valuables. Last but not least, don’t forget to circle back outside through the courtyard for a peek upstairs. The guest room, a private aerie with its own bath and mini-kitchen, is separate from the rest of the house yet connected to it. Here’s the ideal weekend hideaway for friends who are in from out of town, or for adult children and their young kids, whose sleeping schedules might be a different than the rest of the family. “Boomers feel that finally, it’s their time,” says Woodley. “They want space for themselves, and they want to celebrate it.”

Plan B The house is situated on a wide, flared piece of property that’s typical of a cul-de-sac end lot. The flare is reflected in the angling of the wing where the guest room, study, and second bedroom are located. But the plan flexes easily for a conventional lot: The angled wing can be brought parallel to the rest of the home. Except for the upstairs guest suite (located above the second bedroom), this home is all on one floor, making it suitable for aging in place.

Take the Tour

The Builder Concept Home 2012 is open for free guided tours during exhibit hours of the International Builders’ Show, with free round-trip shuttle service from the Westwood Entrance of the West Concourse of the convention center. Parking is severely limited and driving is discouraged.

Contributors

Standing, l-r: Shawn Tofte, Canin Associates; Tony Weremeichik, Canin Associates; Scott Queckboerner, Centerline Homes; Michael Woodley, Woodley Architectural Group; Olaf Nillies, Centerline Homes; Peter Osterman, Centerline Homes; Eric Emerson, Emerson International; Seated, l-r: Alexy Reyes, Centerline Homes; Craig Perry, Centerline Homes; Debra Falese, Woodley Architectural Group; Boyce Thompson, Builder; Kay Green, Kay Green Design; Jerry Collin, Kay Green Design; Erin Nunnery, Kay Green Design


Foundation

Deceuninck (windows) www.deceuninck-americas.com
Kohler (plumbing fixtures and bath accessories) www.kohler.com
Timberlake Cabinetry (cabinets and built-ins) www.timberlake.com
Whirlpool (appliances) www.whirlpool.com

Supporting

Carrier (HVAC and thermostats) www.carrier.com
DuPont (Corian and Zodiaq countertops and solid surfaces) www2.dupont.com/Surfaces/en_US
Mohawk (flooring, carpeting, and Daltile pool tiles) www.mohawkflooring.com
Therma-Tru Doors (entry doors and Fypon trim) http://thermatru.com

Performance

Hearth & Home Technologies (fireplaces) www.hearthnhome.com
Owens Corning (insulation and roof membrane) www.owenscorning.com
Schlage (door hardware) http://schlage.com
Sherwin-Williams Co. (paint) www.sherwin-williams.com

Alliance

A.O. Smith (water heater) www.aosmith.com
Belgard Pavers/Oldcastle APG (pavers) www.belgard.biz
Broan-NuTone (ventilation) www.broan-nutone.com
Eagle Roofing Products (roofing tile) www.eagleroofing.com
Eaton Corp. (electrical and low-voltage) www.eaton.com
Eldorado Stone (veneer stone) www.eldoradostone.com
Electrolux Central Vacuum Systems/Beam (central vacuum) www.electrolux.com
Fiberweb/Typar (housewrap, flashing, and geotextiles) http://typar.com
Gladiator GarageWorks (garage storage system) www.gladiatorgarageworks.com
IAPMO R&T (water-use certification) www.iapmo.org
JELD-WEN (interior doors) www.jeld-wen.com
Kohler Generators (standby generator) http://kohlerpower.com
Nisus Corp. (pest control) www.nisuscorp.com
Phantom Screens (screens) www.phantomscreens.com
Propane Education & Research Council (PERC) (propane tank) www.propanecouncil.org
Uponor (PEX plumbing rough) www.uponor.ca
Wayne-Dalton (garage doors and openers) www.wayne-dalton.com
WinDoor (sliding/telescoping patio doors) www.windoorinc.com

Local Contributors

A-1 Roof Trusses (roof and floor trusses) www.A1truss.com
Capital Painting Group (painting labor)
Classic Floors Ferrazzano (flooring labor) www.ferrazzano.com
Dixie Pools & Spas (pools and spas) www.dixiepools.com
Hubbell Lighting (Progress division) www.progresslighting.com
Richard & Rice Construction Co. (building shells) www.richardandrice.com
Sams LP Gas Co. (propane supply) http://officialsamsgas.com
Southern Turf Management (landscape material and labor) www.southernturf.net
Stone Age Pavers (landscape pavers labor) http://stoneagepavers.com
Symmetrical Stair & Door (interior stairs and railings) www.symmetricalstair.com

For a virtual tour of the Builder Concept Home 2012, visit www.builderconcepthome2012.com.


Learn more about markets featured in this article: Orlando, FL.

Upcoming Events

  • Protecto Wall VP Standard Installation Video

    Webinar

    Register for Free
  • How Right-Sized Plumbing Saves Money, Saves Water, and Protects Wellness

    Webinar

    Register for Free
  • Building Careers from the Ground Up: The IUPAT Floor Covering Apprenticeship and Training Program

    Webinar

    Register for Free
All Events