Builder’s 2012 Concept Homes: Gen Y

A young couple starting out needs room for a growing family, plus space for visiting friends and relatives.

5 MIN READ

Builder Concept Home 2012: Gen XYB, A Multigenerational Community

Location Orlando, Fla.
Home size 4,732 square feet (Gen X); 2,163 square feet (Gen Y); 2,866 square feet (Gen B)
Lot Sizes 70 x 125 feet
Architects Tony Weremeichik, Canin Associates, Orlando (Gen X); Michael Woodley, Woodley Architectural Group, Denver (Gen Y and B)
Builder Centerline Homes, Coral Springs, Fla.
Interior designer/Furnishings/Merchandising Kay Green Design, Orlando
Landscape designer Tony Weremeichik, Canin Associates, Orlando
Pool designer Dixie Pools and Spas, Orlando
Cost per square foot $64 (Gen X); $68 (Gen Y); $66 (Gen B)
Anticipated sale price (approximate) $450,000 (Gen x); $300,000 (Gen Y); $375,000 (Gen B)


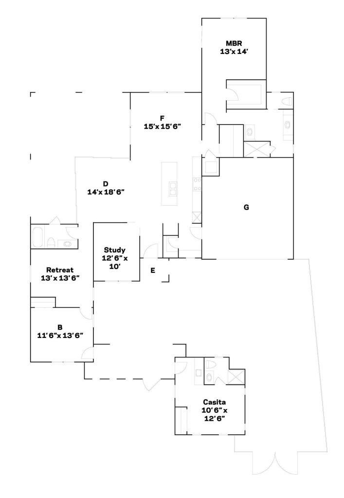
For young buyers stepping up from condo to detached home, architect Michael Woodley designed a one-story house with a simple, open floor plan and airy spaces that ring fresh, clean, and contemporary. And did we mention flexible? “Designing for this kind of buyer involves a different process,” says Woodley. “It has to be an efficient house that can flex for kids, as well as a brother, sister, or parent.” The house adapts beautifully to a young couple starting out with a baby in the near-term plan (or a new arrival). Yet the home accommodates much more. The front bedroom could be a guest room, but it also works as a child’s room, or a bedroom for a roommate or sibling who has come to stay for a while. The adjoining den space can flex from TV room to yoga studio to baby’s room. Could be there’s a parent or grandparent who visits from afar, flying in once a year to be with the family for a month or more. With this in mind, Woodley included a detached guest casita with its own entrance off the front courtyard. The casita has a kitchenette and feels separate enough for privacy, but it’s close enough to feel a part of the house. If one member of the household works from home, the office space adjacent to the kitchen and dining area is equipped with sliding doors that can be opened so there’s connection to the rest of the house and to the view out back. But when it’s time for concentration and conference calls, the doors close it off easily.

Like other homes in this multigenerational community by Centerline Homes, the house takes full advantage of its warm-weather locale, increasing the living space—and making 2,000 square feet feel much bigger—with telescoping sliding glass doors that open out to thoughtfully planned outdoor spaces. In the courtyard entryway, there’s room to shoot hoops, as well as a peaceful spot to sit and read. Out back, the pool and hot tub areas are delineated by separate levels, making for a clean, open space that’s great for gatherings. At night, the pool’s alternating-color illumination adds a touch of drama in the form of a light show. The master bedroom and bathroom are separate enough from the rest of the house so there’s plenty of privacy (check out the private door that leads from bedroom to pool area—perfect for a midnight dip).

Gen Y buyers may be a good 30 years younger than their Boomer counterparts, but Woodley noticed that these two groups have more in common with each other than with the Gen Xers in between them. While Gen Y is just getting started, Boomers may be starting to wind down: Both types of buyers likely have household incomes that are less than a dual-income Gen X couple. Sometimes called “bookenders,” both generations probably have fewer people living with them full time, so they need less house. A compact, open plan home such as this one holds appeal for buyers at both ends of the spectrum.

Plan Y In this layout, the rooms spill gracefully into one another, resulting in a home that’s open, airy, and efficient. The entire plan flexes beautifully for a growing family, for working at home, and for visiting relatives and friends.

Take the Tour

The Builder Concept Home 2012 is open for free guided tours during exhibit hours of the International Builders’ Show, with free round-trip shuttle service from the Westwood Entrance of the West Concourse of the convention center. Parking is severely limited and driving is discouraged.


Contributors

Standing, l-r: Shawn Tofte, Canin Associates; Tony Weremeichik, Canin Associates; Scott Queckboerner, Centerline Homes; Michael Woodley, Woodley Architectural Group; Olaf Nillies, Centerline Homes; Peter Osterman, Centerline Homes; Eric Emerson, Emerson International; Seated, l-r: Alexy Reyes, Centerline Homes; Craig Perry, Centerline Homes; Debra Falese, Woodley Architectural Group; Boyce Thompson, Builder; Kay Green, Kay Green Design; Jerry Collin, Kay Green Design; Erin Nunnery, Kay Green Design


Foundation

Deceuninck (windows) www.deceuninck-americas.com
Kohler (plumbing fixtures and bath accessories) www.kohler.com
Timberlake Cabinetry (cabinets and built-ins) www.timberlake.com
Whirlpool (appliances) www.whirlpool.com

Supporting

Carrier (HVAC and thermostats) www.carrier.com
DuPont (Corian and Zodiaq countertops and solid surfaces) www2.dupont.com/Surfaces/en_US
Mohawk (flooring, carpeting, and Daltile pool tiles) www.mohawkflooring.com
Therma-Tru Doors (entry doors and Fypon trim) http://thermatru.com

Performance

Hearth & Home Technologies (fireplaces) www.hearthnhome.com
Owens Corning (insulation and roof membrane) www.owenscorning.com
Schlage (door hardware) http://schlage.com
Sherwin-Williams Co. (paint) www.sherwin-williams.com

Alliance

A.O. Smith (water heater) www.aosmith.com
Belgard Pavers/Oldcastle APG (pavers) www.belgard.biz
Broan-NuTone (ventilation) www.broan-nutone.com
Eagle Roofing Products (roofing tile) www.eagleroofing.com
Eaton Corp. (electrical and low-voltage) www.eaton.com
Eldorado Stone (veneer stone) www.eldoradostone.com
Electrolux Central Vacuum Systems/Beam (central vacuum) www.electrolux.com
Fiberweb/Typar (housewrap, flashing, and geotextiles) http://typar.com
Gladiator GarageWorks (garage storage system) www.gladiatorgarageworks.com
IAPMO R&T (water-use certification) www.iapmo.org
JELD-WEN (interior doors) www.jeld-wen.com
Kohler Generators (standby generator) http://kohlerpower.com
Nisus Corp. (pest control) www.nisuscorp.com
Phantom Screens (screens) www.phantomscreens.com
Propane Education & Research Council (PERC) (propane tank) www.propanecouncil.org
Uponor (PEX plumbing rough) www.uponor.ca
Wayne-Dalton (garage doors and openers) www.wayne-dalton.com
WinDoor (sliding/telescoping patio doors) www.windoorinc.com

Local Contributors

A-1 Roof Trusses (roof and floor trusses) www.A1truss.com
Capital Painting Group (painting labor)
Classic Floors Ferrazzano (flooring labor) www.ferrazzano.com
Dixie Pools & Spas (pools and spas) www.dixiepools.com
Hubbell Lighting (Progress division) www.progresslighting.com
Richard & Rice Construction Co. (building shells) www.richardandrice.com
Sams LP Gas Co. (propane supply) http://officialsamsgas.com
Southern Turf Management (landscape material and labor) www.southernturf.net
Stone Age Pavers (landscape pavers labor) http://stoneagepavers.com
Symmetrical Stair & Door (interior stairs and railings) www.symmetricalstair.com

For a virtual tour of the Builder Concept Home 2012, visit www.builderconcepthome2012.com.

Learn more about markets featured in this article: Orlando, FL.

Upcoming Events

  • Protecto Wall VP Standard Installation Video

    Webinar

    Register for Free
  • How Right-Sized Plumbing Saves Money, Saves Water, and Protects Wellness

    Webinar

    Register for Free
  • Building Careers from the Ground Up: The IUPAT Floor Covering Apprenticeship and Training Program

    Webinar

    Register for Free
All Events