Geier House

Williamstown, Mass.

1 MIN READ

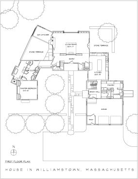
You’d be hard-pressed to findan ugly view in this pastoral setting near the Vermont-Massachusetts border, but the most spectacular one is to the west. Unfortunately that’s the same direction that sends brutal winds come winter. One of the challenges facing Burr and McCallum Architects and general contractor Albert Cummings was figuring out how to capture the western sun all year long while blocking out unwanted gusts of cold air.

Their gem of a solution is a west-facing “sun catcher” porch. Walled in and outfitted with three large sliding barn doors, it can be opened to the breeze in summer or closed in winter to block the wind while still absorbing the sun’s rays from above.

Project Details

Grand

Category Custom home, less than 3,500 square feet
Entrant/Builder Albert J. Cummings General Contractor, Williamstown, Mass.
Architect Burr and McCallum Architects, Williamstown

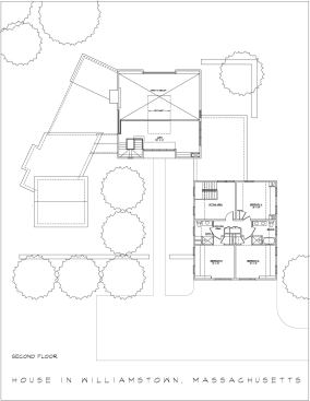
In fact, it’s just one of many intimate outdoor spaces in this neat little compound—a fresh take on the classic farmhouse that trades traditional clapboard for light-gauge metal wall systems. Crisp as an autumn day, the house is made up of three barn forms connected by simple sheds, which collectively form a south-facing courtyard that shelters the front entry. It also has a stone terrace off the kitchen for al fresco dining.

Inside, the team specified high windows, a large, south-facing skylight, and strategically placed sunshades to help stabilize heating and cooling needs.

About the Author

Upcoming Events

  • Build-to-Rent Conference

    JW Marriott Phoenix Desert Ridge

    Register Now
  • Builder 100

    Dana Point, CA

    Register Now
  • Protecto Wall VP Standard Installation Video

    Webinar

    Register for Free
All Events