Historic Vaucluse

Machipongo, Va.

1 MIN READ

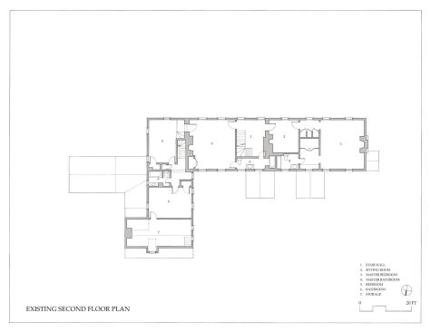
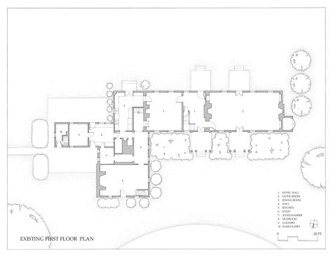
One of the hardest tasks in ren-ovating a historic home is figuring out what to keep, what to get rid of, and what to play up. Such was the case with Vaucluse, a Tidewater plantation home built originally in 1784 on the banks of the Hungar River on Virginia’s Eastern Shore.

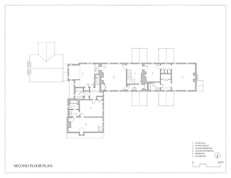
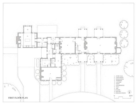
It didn’t take architect Stephen Muse long to decide what had to go—a couple of additions that didn’t function well and weren’t sympathetic with the home’s simple Georgian design. Also on the chopping block was an awkward kitchen in one corner of the original one-room-deep main house. This space he converted into a dining room, which now connects to a new kitchen wing via a butler’s pantry.

The new kitchen’s apostrophe-like separation from the rest of the house isn’t accidental, given that kitchens were often built as stand-alone structures in the 1700s and 1800s. This one extends into an eating bay full of windows overlooking the river—a space designed to look as though it might once have been a porch that was enclosed.

Project Details

Grand

Category Whole-house makeover or significant addition
Entrant/Architect Muse Architects, Bethesda, Md.
Builder Tim Maloney, Lansdowne, Pa.
Landscape architect In Full Bloom, Painter, Va.


The historic home’s most idiosyncratic feature—two side-by-side front doors with porches—was a definite keeper. One door opens into the living room, while the other provides entry into the center hall. For balance and symmetry, Muse rebuilt similar porches on the back side of the house.

“You always play with what the house offers,” he says.

About the Author

Upcoming Events

  • Build-to-Rent Conference

    JW Marriott Phoenix Desert Ridge

    Register Now
  • Builder 100

    Dana Point, CA

    Register Now
  • Protecto Wall VP Standard Installation Video

    Webinar

    Register for Free
All Events