Lagoon Pond Pavilion

Vineyard Haven, Mass.

1 MIN READ

The clients for this vacation home on Martha’s Vineyard owned a one-story ranch on the property for almost 20 years. When it was time to build a new retreat, they knew what they wanted and asked Hutker Architects to translate their vision into reality.

After razing the existing house, the design team positioned a low-slope, bar-shaped building on the triangular-shaped site, using every available bit of ground that was legally permitted (at the same time making a few concessions to get more). “The whole intent was to maintain the views for the client as well as the adjacent houses,” says architect Jim Cappuccino. To that end, the main house sits low and acts as an aperture for viewing the lagoon on one side, along with the interior courtyard and pool on the other.

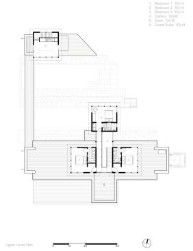
“The big issue is that the clients wanted some privacy from guests and visitors, so the concept of separate but equal emerged,” explains principal Mark Hutker. The ground floor of the main house features a master suite, while the upper portion of the home has three guest rooms, each with deck access. A separate guest suite is located in another building across the property. Linked by a glass-enclosed connector, the suite also has an upper level with a deck for viewing the water.

Project Details

Grand

Category Custom home, 3,500 to 6,000 square feet
Entrant/Architect Hutker Architects, Vineyard Haven, Mass.
Builder Rosbeck Builders Corp., Edgartown, Mass.
Interior designer Studio Waterman, Rancho Mirage, Calif.
Landscape architect Horiuchi Solien Landscape Architects, Falmouth, Mass.

To ensure a structure that blended with its natural surroundings rather than competed with it, the team settled on simple materials such as New England fieldstone, bronze-clad and mahogany windows, and Western red cedar. “With such a rich visual environment, using a restrained material palette allows for more focus on the environment,” Hutker says. The surfaces “were left natural to weather and recede into the visual landscape.”

About the Author

Upcoming Events

  • Protecto Wall VP Standard Installation Video

    Webinar

    Register for Free
  • How Right-Sized Plumbing Saves Money, Saves Water, and Protects Wellness

    Webinar

    Register for Free
  • Building Careers from the Ground Up: The IUPAT Floor Covering Apprenticeship and Training Program

    Webinar

    Register for Free
All Events