Olympia Avenue Student Housing

Pullman, Wash.

1 MIN READ

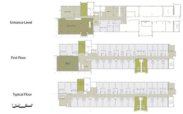
When the architects at Mithun were hired to design Washington State University’s first new residential hall in 30 years, they knew they’d been handed the keys to do something different. Now on track to receive LEED Silver certification, the 76,250-square-foot building features a geothermal heating and cooling system, distinctive sun shades, a stormwater collection system that reuses water for irrigation, low-flow plumbing fixtures designed for 20 percent water savings, and a location close to public transportation. Recycling and reuse strategies also allowed the builder, Graham Construction, to achieve a 50 percent reduction in construction waste.

Realizing that user behavior is a critical part of the green equation, the finished building also teaches its 229 student inhabitants to use it well. Posters reinforcing the energy savings are placed methodically around the building as a reminder, and bathroom users cannot help but read about how much water the toilets save.

In fact, student participation helped shape the program from the start. Feedback from a student lifestyle preferences survey led to features such as active and quiet common spaces, bike storage, and wireless Internet access.

Project Details

Merit
Category
Green/Sustainable project
Entrant/Architect/Land planner/Interior designer/Landscape designer Mithun, Seattle
Builder Graham Construction Co., Seattle
Developer Washington State University Housing & Food Services, Pullman, Wash.

Learn more about markets featured in this article: Seattle, WA, Olympia, WA.

About the Author

Upcoming Events

  • Protecto Wall VP Standard Installation Video

    Webinar

    Register for Free
  • How Right-Sized Plumbing Saves Money, Saves Water, and Protects Wellness

    Webinar

    Register for Free
  • Building Careers from the Ground Up: The IUPAT Floor Covering Apprenticeship and Training Program

    Webinar

    Register for Free
All Events