Raul J. Garcia
Safari Drive Condominiums, Scottsdale, Ariz.
Americans often dismiss the idea of downtown living because they assume it means giving up certain benefits of suburban life, such as yards, garages, and swimming pools.
But living at Safari Drive doesn’t require any such sacrifice. Instead, it offers what some might consider the best of both worlds. Neatly tailored to fit a triangular city lot, it’s got the urban advantages of being pedestrian-friendly, conveniently located, and resourceful in its land use. But it also offers space to breathe, unique architecture, and underground parking. (Not to mention the all-important pool.)
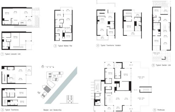
Public spaces are the organizing framework for this 4.78-acre village, which layers upscale townhomes, flats, live/work units, and retail in a neighborly setting. Buildings oriented for shade protection form a sequence of interconnected outdoor “rooms” with sightlines to the mountains and an adjacent canal promenade.
The approach, which some might classify as “urban light,” carries out a vision set forth by developers Chris Camberlango and Peter Wolff to offer a viable alternative to sprawl. A far cry from skyscrapers or monolithic apartment towers, its structures aren’t so tall as to create a canyon-like feeling in the spaces between them. The five-story condo buildings pack in 96 units, but maintain a comfortable scale with intertwining pathways lined with rock gardens, scrubby grass, and other native plantings at eye level.
Project Details
Project of the Year and Grand
Categories Project of the Year; Condos—for sale (grand)Entrant/Architect The Miller|Hull Partnership, Seattle
Builder Okland Construction, Tempe, Ariz.
Developers Vanguard City Homes, Scottsdale, Ariz.; and The Wolff Co., Scottsdale
Landscape architect JJR Floor, Phoenix
Still, it’s an unlikely approach for low-lying Scottsdale, where the average density is four units to the acre. Pushing that ratio up to 24 units per acre made attached housing a necessity, but a diverse blend of unit types and building forms ensures that the residences feel personalized. Each home—be it penthouse, townhouse, or flat—enjoys its own private outdoor patio or balcony, and saw-toothed building façades ensure that those spaces are always partially shaded, regardless of the time of day.
East Meets West

Safari Drive Condominiums, Scottsdale, Ariz.
Credit: Raul J. Garcia
The evaporative concrete block “cool tower” that keeps this courtyard temperate employs a centuries-old passive mechanical device commonly used in Middle Eastern architecture. A small recirculating pump sends water trickling down a vertical shaft, where it pulls heat from the air as it falls. “By the time the air reaches the bottom it may be 30 degrees cooler,” explains architect Mike Jobes, a principal with The Miller|Hull Partnership. The tower serves as a sculptural landmark, while at the same time housing an exposed staircase and elevator.
“Often these types of projects become very repetitive in their design, which makes it even harder to get people to move downtown,” explains architect Craig Curtis, a partner with The Miller|Hull Partnership, which masterminded the design and site plan. “One of our goals was to give people lots of choices so they could maintain their own identity. We could have gone higher and gotten more density during permitting, but we didn’t.”
Modest in scale, the complex, which borrows its name from the 1950s-era Safari Hotel that once occupied the site, is also restrained in its resource consumption. Certified by Scottsdale’s green building program for multifamily dwellings, it makes judicious use of deep overhangs, thermal mass construction, tight building envelopes, a neighborhood-wide hydronic loop heating and cooling system, and naturally weathering materials such as oxidized Cor-Ten steel and concrete block. A public courtyard in the village center is passively cooled by an evaporative “cool tower,” a simple piece of engineering borrowed from Middle Eastern Kasbah design.
“In this climate, you want to be outside eight months out of the year,” Curtis says. “The challenge was making that possible on a hard-edged site next to a shopping mall. One of our goals was to set up a ground plane experience in which the landscaping would be an important part of the solution.”
Learn more about markets featured in this article: Phoenix, AZ.