San Juan Passage

Anacortes, Wash.

1 MIN READ

Perched on 24 acres overlook-ing the San Juan Islands of Puget Sound, this neighborhood of 100 cottages is distinguished by a foreign influence, albeit a subtle one.

Coastal cottages are as common as daisies in these parts, but what makes these different is that they are partly of New England descent, possessing classic Nantucket shingle-style elements such as steeply pitched roofs, shed dormers, crisp white trim, second-floor balconies, and hat brims over the garages. “The Craftsman bungalow is a classic Pacific Northwest style that we didn’t want to replicate, although we did have to acknowledge the practicalities that make that kind of architecture so prevalent in the area,” says Douglas Kallfelz, a principal with Donald Powers Architects, based in Providence, R.I.


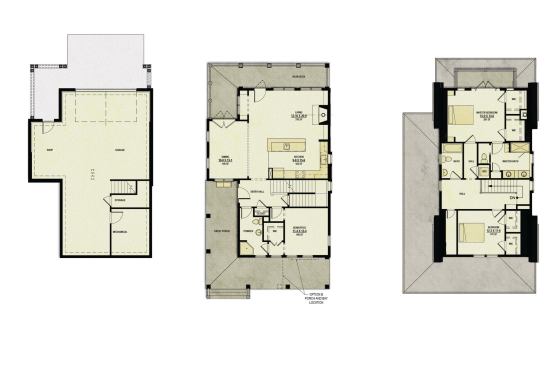
Blending Yankee style with some simplified Craftsman turns (exposed rafter tails, for example), the sturdy little houses are built to withstand heavy wind and rain. And they’re models of efficiency. Built with 2×6 wall construction, high-performance mechanical systems, native landscaping, and stormwater management, they are frugal consumers. Their interiors, like ships’ quarters, are neatly equipped with built-in bookcases, window seats, and other space-savers. “It’s living small, but living more efficiently,” Kallfelz says.

Project Details

Grand

Category Production home, less than 2,000 square feet
Entrant/Architect Donald Powers Architects, Providence, R.I.
Builder/Developer Gilbane Development Co., Providence
Master Planner and Landscape Architect GCH Planning and Landscape Design, Seattle
Civil Engineer Leonard, Boudinot & Skodje, Mount Vernon, Wash.

The big takeaway here isn’t so much the site plan (which was designed around a preapproved road layout that couldn’t be changed), but rather the nine (and counting) ingenious little plans, each of which comes with a handful of elevation options. Small, economical, and smart, they are replicable prototypes that could fit in just about anywhere.

Learn more about markets featured in this article: Olympia, WA.

About the Author

Upcoming Events

  • Happier Homebuyers, Higher Profits: Specifying Fireplaces for Today’s Homes

    Webinar

    Register for Free
  • Sales is a Sport: These Tactics Are the Winning Play

    Webinar

    Register for Free
  • Dispelling Myths and Maximizing Value: Unlock the Potential of Open Web Floor Trusses

    Webinar

    Register for Free
All Events