Arjun Desai and Katherine Chia Are True Urban Interventionists

desai/chia architecture practices the art of subtraction and insertion, light and delight.

4 MIN READ

Arjun Desai and Katherine Chia, AIA, are urban to the core. The married couple lives in Manhattan and works in a seventh floor studio on a narrow street near Madison Square Park. The room’s white walls are punctuated by blocks of color, and a George Nelson cigar lamp hangs over a conference table holding exquisitely crafted models. Those models—mostly weekend getaways for their city clients—are of single-family-homes, but they’re quietly cross-pollinated with urban ideas the pair has spent 15 years perfecting.

Since its launch in 1996, Desai/Chia Architecture’s focus has been on finding creativity in the city’s constrained spaces, but building in New York offers a framework for how to approach design just about anywhere. Limited to what an existing building offers, Desai and Chia are forced to be inventive about how they organize space and technical infrastructure. They’re working back and forth between the big concept—creating dual-purpose spaces that flow but feel intimate, getting the most from the mechanical systems—and the fine grain. What materials lend texture and warmth to windowless rooms? How do you brighten up dim interiors, and what fixtures will produce the best-quality light to express the architecture, almost like a painting?

Video installation artist and lighting designer Christine Sciulli is a frequent collaborator and fan. “They’re incredibly curious, always pushing a material to its limit,” says the New York–based Sciulli. “A lot of what we do together is play with light, using different materials to mock things up. What happens when daylight turns to dusk and the artificial light takes over? When the lights are turned on in one place, how does it affect adjacent spaces?”

light craft

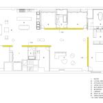
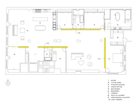
Consider the 4,000-square-foot industrial loft in Madison Square that Chia and Desai adapted for a family of four. Into the cavernous footprint they inserted two perpendicular wood-and-glass cores that light up the living zones. One defines the kitchen and storage area, another serves as a media wall and houses the baths. Both volumes are wrapped in vertical wood planks that stop shy of the high ceiling, implying a clerestory like that of a single-family home. Light also filters through the kitchen core’s offset ash slats, and those outside the bath can be tilted manually to emit more or less light.

These subtly ingenious moves differentiate the lit spaces from those in shadow, and they were meticulously studied in full-size mock-ups. “For the wood core system, we wanted to see how much light would come through the slats, explore the operability of the planks and their overall proportion, and the texture and patterning of the wood,” Chia says. “In the glass mock-ups we looked at different densities of acid etching and various angles so the light would refract and reflect off the surface.” She’s referring to the master bath’s glass wall panels, which are angled to produce a precise level of translucency and a luminous green hue.

“We tend to look at architecture that is simpler and dematerialized, so that space and light can flow,” Desai says. Growing up in Chandigarh, India, he was influenced by Le Corbusier’s early Modernist buildings, the intense sunlight, and the use of jali as room dividers that sift air and light. “We don’t stress form for form’s sake,” he says. “That hasn’t been our philosophy.”

New York’s arts culture embraces their enthusiasm for multidisciplinary design, and their obsession with materials. The couple found jobs here after graduating from the MIT School of Architecture + Planning in 1991. Desai did historic preservation work for Swanke Hayden Connell. Chia, who has a fine arts undergraduate degree, joined Maya Lin’s studio, where she learned to shape materials by hand.

creature comforts

The pair’s tactile sensibility results in an approach that juxtaposes the ethereal with finishes that are built to last. There are elongated bedroom doors, and a hall wall, wrapped in dark-colored laminate, which reflects light and resists fingerprints. In one loft bath, back-painted glass counterpoints a wall of penny-round tiles. In another, thin, linear wall tiles respond to the original white terra-cotta patterns in relic structural columns. “The urban environment has a strong history,” Chia says. “We feel like archaeologists, uncovering things and blending the new with the patina of the old.”

Recess Lav, a resin sink with an integrated backsplash and medicine cabinet, embodies the blend of practicality and expressiveness at the heart of their endeavors. Produced and distributed by AF New York, the clean sheath slips seamlessly into a compact bath, projecting just 12 inches when tucked into a stud wall.

Desai and Chia have found that the quirky challenges of city dwellings—doubling up functions in the workhorse parts of the home, lighting the dark zones, and cleverly layering spaces to keep them visually connected—transcend location and project type. “We’ve learned to be efficient in floor plan layout, so in new construction we’re not automatically jumping to bigger is better,” Chia says.

“We’ve tried to be consistent in what we do, dealing with light and issues of openness and transparency,” Desai agrees. “We’ve been very conscious about how our work holds together as a whole.” It is a particularly relevant expression, given today’s focus on setting limits, and on quality over carte blanche.

Upcoming Events

  • Happier Homebuyers, Higher Profits: Specifying Fireplaces for Today’s Homes

    Webinar

    Register for Free
  • Sales is a Sport: These Tactics Are the Winning Play

    Webinar

    Register for Free
  • Dispelling Myths and Maximizing Value: Unlock the Potential of Open Web Floor Trusses

    Webinar

    Register for Free
All Events