Children’s Chapel and Education Center

Brookline, Mass.

2 MIN READ

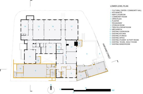
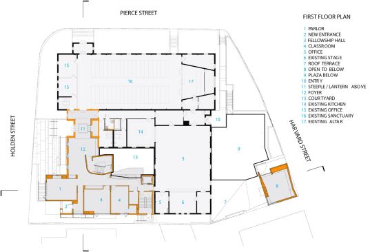
Brian Healy Architects • To celebrate its 50th anniversary jubilee in 2003, the Korean Church of Boston held a design competition. The brief: Design an infill structure on the church’s existing site for the congregation’s smallest members, children aged five through 12. Brian Healy Architects won the competition with a scheme for a two-story (plus basement) structure with a CMU-and-steel frame, clad in a wood-and-cement-panel rainscreen—a modern structure that is a far cry from its traditional New England surroundings. But instead of being an affront, the changes to the campus actually invite the neighborhood in, with a series of site and landscaping changes that excavated an existing plinth and retaining wall down to grade level, creating a public park for the community.

The 8,341 square feet of new construction and 2,133 square feet of renovated space include classrooms, a community hall, a fellowship hall, and a children’s chapel. The chapel—which juror Bill Valentine “liked spatially—features a faceted ceiling clad in acoustic panels. A CNC-fabricated bamboo screen allows people to enter the space without disrupting the proceedings and echoes the warmth of the wooden riser seating. The altar doubles as a stage area, so that the children can put on performances for their parents and the rest of the parishioners. Donna Robertson appreciated the woodwork, and although juror John Cary expressed some concern about the juxtaposition of the modern and traditional designs, he thought the project as a whole was “very, very nice.”


Project Credits

Children’s Chapel and Education Center, Korean Church of Boston, Brookline, Mass.
Client Korean Church of Boston
Architect Brian Healy Architects, Somerville, Mass.—Brian Healy (principal); Paxton Sheldahl (associate); Heike Baraungardt, Gerry Gutierrez, Tala Klinck, Bohseung Kung, Steve Mayer, John McDonald, Chris Muskoft, Matt Pierce, Tom Rourke, Alec Templeton (design team)
Structural Engineer Richmond So Engineers
Lighting Lam Partners
Acoustics Threshold Acoustic Engineers
M/E/P Engineer Allied Consulting Engineering Services
Civil Engineer BSC Group
Fabrication Engineer Bill Bancroft
General Contractor Kang Suk Construction
Size 8,341 square feet new construction; 2,133 square feet renovated construction
Cost Withheld
Photography Paxton Sheldahl

About the Author

Katie Gerfen

Katie Gerfen is the former editor-in-chief of ARCHITECT, as well as the former editor of Custom Home.

Upcoming Events

  • Protecto Wall VP Standard Installation Video

    Webinar

    Register for Free
  • How Right-Sized Plumbing Saves Money, Saves Water, and Protects Wellness

    Webinar

    Register for Free
  • Building Careers from the Ground Up: The IUPAT Floor Covering Apprenticeship and Training Program

    Webinar

    Register for Free
All Events