Gehry Residence Wins AIA Twenty-five Year Award

The 2012 Honor Awards jury chose Gehry’s house, completed in 1978, as an example of iconic American architecture that remains relevant today.

1 MIN READ

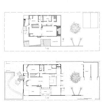
Selected from among the many projects nominated for the 2012 AIA Twenty-five Year Award, the Gehry Residence was chosen by the Institute Honor Awards for Architecture jury as an enduring example of how modest details and materials can be transformed into interesting, conversation-inciting architecture. The house was purchased and renovated in 1978 for $260,000. Awarding such budget-minded design, which is still being used for its original purpose with only one small bedroom addition, was another consideration by the jurors, especially given today’s economic climate.The project “ignited a forum to consider the relationship between art and architecture,” one juror noted, “which fueled the subsequent waves of architect and artist collaborative projects in the ’80s, further expanding the role of the architect in culture.”

In his submission statement, Gehry says that when he designed the house he wanted to incorporate prevalent materials from the suburban neighborhoods where he, his wife, and two sons were living. He chose simple, durable materials also symbolic of middle-class America such as corrugated steel and chain link fencing and shaped them into an artistic, almost chaotic skin around the original bungalow. The spaces in between are protected by bold geometric glass roofs and serve as an inexpensive solution for increasing square footage in a manner emblematic of the sunny Southern California indoor-outdoor lifestyle. “I searched for an interpretation of what I found that could suit my family, myself,” says Gehry in his entry booklet. “I dug deep into my own history and education for cues and clues and then followed my intuitions.”

Read the complete coverage of the Gehry Residence’s award from the AIA.


About the Author

Shelley D. Hutchins

Shelley D. Hutchins, LEED AP, writes about residential construction and design, sustainable building and living, and travel and health-care issues.

Upcoming Events

  • Build-to-Rent Conference

    JW Marriott Phoenix Desert Ridge

    Register Now
  • Builder 100

    Dana Point, CA

    Register Now
  • Protecto Wall VP Standard Installation Video

    Webinar

    Register for Free
All Events