2005 RADA Rye Residence, Rye, N.Y. Merit Award / Custom, More …
2005 RADA Rye Residence, Rye, N.Y. Merit Award / Custom, More Than 3,500 Square Feet The Rye Residence, designed when Moore was a partner at Kaehler/Moore Architects, features slightly exaggerated vertical proportions.
David Sundberg/Esto
…
“It's really inventive,” said one of the 2005 RADA judges. “It takes a familiar vocabulary and makes something different.”
Joeb Moore, Rudi Elert, Kaehler/Moore Architects
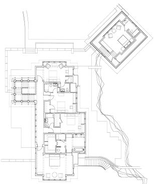
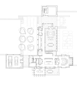
The home’s first-floor plan.
Joeb Moore, Rudi Elert, Kaehler/Moore Architects
The home’s second-floor plan.
Tracey Kroll
Joeb Moore reinterprets familiar materials and forms in fresh, o…
Joeb Moore reinterprets familiar materials and forms in fresh, often witty ways.
David Sundberg/Esto
Moore returned to his first commission, Winding Lane, to add a B…
Moore returned to his first commission, Winding Lane, to add a Bali-inspired three-tier screened porch in 2006. Done in mahogany with a Sikkens boat finish, each deck level orients to a different view of the surrounding wetlands. As furnished rooms, the c
David Sundberg/Esto
Moore returned to his first commission, Winding Lane, to add a B…
Moore returned to his first commission, Winding Lane, to add a Bali-inspired three-tier screened porch in 2006. Done in mahogany with a Sikkens boat finish, each deck level orients to a different view of the surrounding wetlands. As furnished rooms, the c
David Sundberg/Esto
Moore's award-winning reinvention of an early 1950s Eliot Noyes …
Moore's award-winning reinvention of an early 1950s Eliot Noyes house included restoring the original first-floor shell and adding a floating second-story box that mimics the proportions of Noyes – creation, based on a nine-square grid. In contrast to dev
David Sundberg/Esto
Moore's award-winning reinvention of an early 1950s Eliot Noyes …
Moore's award-winning reinvention of an early 1950s Eliot Noyes house included restoring the original first-floor shell and adding a floating second-story box that mimics the proportions of Noyes – creation, based on a nine-square grid. In contrast to dev
David Sundberg/Esto
2007 RADA Mianus River Residence, Stamford, Conn. Merit Award …
2007 RADA Mianus River Residence, Stamford, Conn. Merit Award / Custom, More Than 3,500 Square Feet The home’s back side has river views.
kaehler/moore architects
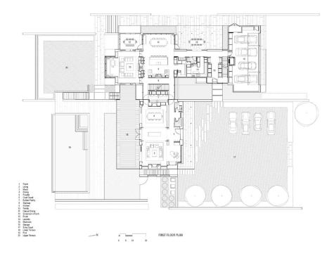
The project’s first floor plan.
kaehler/moore architects
The project’s second floor plan.
David Sundberg/Esto
A perpendicular singlestory volume houses the informal living sp…
A perpendicular singlestory volume houses the informal living spaces, including a spare but elegant kitchen.
David Sundberg/Esto
In lieu of an obvious front door, the entrance is through a 16-f…
In lieu of an obvious front door, the entrance is through a 16-foot-by-20-foot void that splits the house front to back.
Lorin Klaris Photography
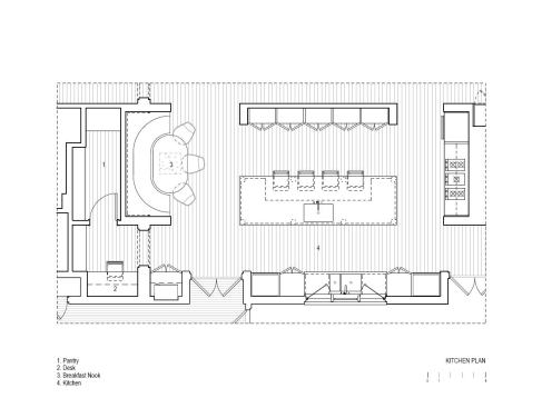
2009 RADA Riverbank Residence, Stamford, Conn. Merit Award / K…
2009 RADA Riverbank Residence, Stamford, Conn. Merit Award / Kitchen Striking contrasts —ebonized floors and white cabinets, a mobile island and fixed appliances, contemporary stainless steel and traditional wood —punctuate the Mianus River Residence’s kitchen.
Lorin Klaris Photography
The vertical lines of a custom leather banquette are echoed in t…
The vertical lines of a custom leather banquette are echoed in the elegantly slim legs of the round breakfast table.
Joeb + Partners, Architects
The kitchen’s floor plan.
David Sundberg/Esto
Engineered stone forms the floor, tub, and wainscot of this mast…
Engineered stone forms the floor, tub, and wainscot of this master bath, which doubles as a pool cabana. Sliding glass partitions at the tub yield a variety of possible configurations.
David Sundberg/Esto
Engineered stone forms the floor, tub, and wainscot of this mast…
Engineered stone forms the floor, tub, and wainscot of this master bath, which doubles as a pool cabana. Sliding glass partitions at the tub yield a variety of possible configurations.
Courtest Joeb + Partners, Architects
The floor plan.
David Sundberg/Esto
2010 CHDA Private Residence, Greenwich, Conn. Grand Award / Mo…
2010 CHDA Private Residence, Greenwich, Conn. Grand Award / More Than 5,000 Square Feet The street-facing, wood-detailed gable acts as a beacon in the evening.
David Sundberg/Esto
A glass-walled gap marks the point where the two perpendicular p…
A glass-walled gap marks the point where the two perpendicular pieces of the house come together.
David Sundberg/Esto
Built-in curtains can be used to divide or unite the main living…
Built-in curtains can be used to divide or unite the main living space.
David Sundberg/Esto
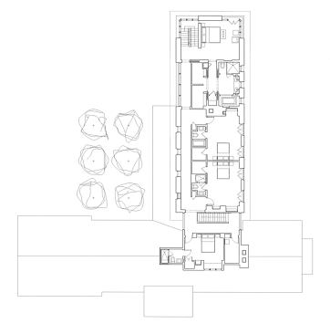
A plan of the home's first floor.
David Sundberg/Esto
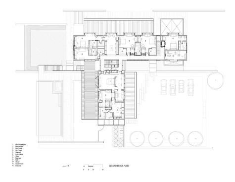
A plan of the home's second floor.
David Sundberg/Esto
Another gap, partially expressed through a void in the roof mass…
Another gap, partially expressed through a void in the roof massing, separates the garage and guest room from the children's bedrooms.
David Sundberg/Esto
The kitchen opens onto a casual dining area.
David Sundberg/Esto
A terrace overlooks the swimming pool, which occupies a lower le…
A terrace overlooks the swimming pool, which occupies a lower level of the steeply sloped site.
David Sundberg/Esto
A daytime view of the street elevation.
Michael Biondo
This remodeled kitchen represents an effort to project the vocab…
This remodeled kitchen represents an effort to project the vocabulary of Richard Neutra—the house’s original architect—into the present day.
Michael Biondo
Stainless steel columns—so slender that they are practically t…
Stainless steel columns—so slender that they are practically two-dimensional—mark the path of the partition that isolated the original kitchen from the living and dining areas.
Michael Biondo
Knife-edge stainless steel counters top the gloss-white base cab…
Knife-edge stainless steel counters top the gloss-white base cabinets. The uppers are acid-washed steel.
Michael Biondo
The new columns are nearly invisible when viewed head-on.
Michael Biondo
Blackened steel plate wraps the doorway to the house’s back ha…
Blackened steel plate wraps the doorway to the house’s back hall.
Courtesy Joeb Moore + Partners
The original kitchen.
Courtesy Joeb Moore + Partners
The kitchen in axonometric view.
Michael Biondo
The project clearly distinguishes between new and restoration.
1
of 43
Courtesy Joeb Moore & Partners
HFR Residence, a design proposal for a new house in Greenwich, C…
HFR Residence, a design proposal for a new house in Greenwich, Conn.
Courtesy Joeb Moore & Partners
HFR Residence, a design proposal for a new house in Greenwich, C…
HFR Residence, a design proposal for a new house in Greenwich, Conn.
Courtesy Joeb Moore & Partners
HFR Residence, a design proposal for a new house in Greenwich, C…
HFR Residence, a design proposal for a new house in Greenwich, Conn.
Courtesy Joeb Moore & Partners
HFR Residence, a design proposal for a new house in Greenwich, C…
HFR Residence, a design proposal for a new house in Greenwich, Conn.
Courtesy Joeb Moore & Partners
HFR Residence, a design proposal for a new house in Greenwich, C…
HFR Residence, a design proposal for a new house in Greenwich, Conn.
Courtesy Joeb Moore & Partners
HFR Residence, a design proposal for a new house in Greenwich, C…
HFR Residence, a design proposal for a new house in Greenwich, Conn.
Courtesy Joeb Moore & Partners
HFR Residence, a design proposal for a new house in Greenwich, C…
HFR Residence, a design proposal for a new house in Greenwich, Conn.
Courtesy Joeb Moore & Partners
HFR Residence, a design proposal for a new house in Greenwich, C…
HFR Residence, a design proposal for a new house in Greenwich, Conn.
Courtesy Joeb Moore & Partners
HFR Residence, a design proposal for a new house in Greenwich, C…
HFR Residence, a design proposal for a new house in Greenwich, Conn.
Courtesy Joeb Moore & Partners
HFR Residence, a design proposal for a new house in Greenwich, C…
HFR Residence, a design proposal for a new house in Greenwich, Conn.
Courtesy Joeb Moore & Partners
HFR Residence, a design proposal for a new house in Greenwich, C…
HFR Residence, a design proposal for a new house in Greenwich, Conn.
Courtesy Joeb Moore & Partners
HFR Residence, a design proposal for a new house in Greenwich, C…
HFR Residence, a design proposal for a new house in Greenwich, Conn.
Courtesy Joeb Moore & Partners
WD Residence, an on-the-boards addition to a 1910 house in Washi…
WD Residence, an on-the-boards addition to a 1910 house in Washington Depot, Conn.
Courtesy Joeb Moore & Partners
WD Residence, an on-the-boards addition to a 1910 house in Washi…
WD Residence, an on-the-boards addition to a 1910 house in Washington Depot, Conn.
Courtesy Joeb Moore & Partners
WD Residence, an on-the-boards addition to a 1910 house in Washi…
WD Residence, an on-the-boards addition to a 1910 house in Washington Depot, Conn.
Courtesy Joeb Moore & Partners
WD Residence, an on-the-boards addition to a 1910 house in Washi…
WD Residence, an on-the-boards addition to a 1910 house in Washington Depot, Conn.
Courtesy Joeb Moore & Partners
WD Residence, an on-the-boards addition to a 1910 house in Washi…
WD Residence, an on-the-boards addition to a 1910 house in Washington Depot, Conn.
Courtesy Joeb Moore & Partners
WD Residence, an on-the-boards addition to a 1910 house in Washi…
WD Residence, an on-the-boards addition to a 1910 house in Washington Depot, Conn.
David Sundberg/Esto www.esto.com
Palm Beach Apartment, a recently completed residential interior …
Palm Beach Apartment, a recently completed residential interior in Palm Beach, Fla.
David Sundberg/Esto www.esto.com
Palm Beach Apartment, a recently completed residential interior …
Palm Beach Apartment, a recently completed residential interior in Palm Beach, Fla.
David Sundberg/Esto www.esto.com
Palm Beach Apartment, a recently completed residential interior …
Palm Beach Apartment, a recently completed residential interior in Palm Beach, Fla.
David Sundberg/Esto www.esto.com
Palm Beach Apartment, a recently completed residential interior …
Palm Beach Apartment, a recently completed residential interior in Palm Beach, Fla.
Courtesy Joeb Moore & Partners
Palm Beach Apartment, a recently completed residential interior …
Palm Beach Apartment, a recently completed residential interior in Palm Beach, Fla.
Courtesy Joeb Moore & Partners
Palm Beach Apartment, a recently completed residential interior …
Palm Beach Apartment, a recently completed residential interior in Palm Beach, Fla.
Courtesy Joeb Moore & Partners
Palm Beach Apartment, a recently completed residential interior …
Palm Beach Apartment, a recently completed residential interior in Palm Beach, Fla.
Courtesy Joeb Moore & Partners
Palm Beach Apartment, a recently completed residential interior …
Palm Beach Apartment, a recently completed residential interior in Palm Beach, Fla.
Courtesy Joeb Moore & Partners
Stonington Residence, a 2013 renovation of a mid-century modern …
Stonington Residence, a 2013 renovation of a mid-century modern residence in Stonington, Conn.
Courtesy Joeb Moore & Partners
Stonington Residence, a 2013 renovation of a mid-century modern …
Stonington Residence, a 2013 renovation of a mid-century modern residence in Stonington, Conn.
Courtesy Joeb Moore & Partners
Stonington Residence, a 2013 renovation of a mid-century modern …
Stonington Residence, a 2013 renovation of a mid-century modern residence in Stonington, Conn.
Courtesy Joeb Moore & Partners
Stonington Residence, a 2013 renovation of a mid-century modern …
Stonington Residence, a 2013 renovation of a mid-century modern residence in Stonington, Conn.
Courtesy Joeb Moore & Partners
Stonington Residence, a 2013 renovation of a mid-century modern …
Stonington Residence, a 2013 renovation of a mid-century modern residence in Stonington, Conn.
Courtesy Joeb Moore & Partners
Stonington Residence, a 2013 renovation of a mid-century modern …
Stonington Residence, a 2013 renovation of a mid-century modern residence in Stonington, Conn.
Courtesy Joeb Moore & Partners
Stonington Residence, a 2013 renovation of a mid-century modern …
Stonington Residence, a 2013 renovation of a mid-century modern residence in Stonington, Conn.
Courtesy Joeb Moore & Partners
Stonington Residence, a 2013 renovation of a mid-century modern …
Stonington Residence, a 2013 renovation of a mid-century modern residence in Stonington, Conn.
Alix Martinez
AMP Studio, a photography studio in Fairfield County, Conn.
Alix Martinez
AMP Studio, a photography studio in Fairfield County, Conn.
Alix Martinez
AMP Studio, a photography studio in Fairfield County, Conn.
Alix Martinez
AMP Studio, a photography studio in Fairfield County, Conn.
Alix Martinez
AMP Studio, a photography studio in Fairfield County, Conn.
Courtesy Joeb Moore & Partners
AMP Studio, a photography studio in Fairfield County, Conn.
Courtesy Joeb Moore & Partners
AMP Studio, a photography studio in Fairfield County, Conn.
Alix Martinez
AMP Studio, a photography studio in Fairfield County, Conn.
Alix Martinez
AMP Studio, a photography studio in Fairfield County, Conn.
Joeb Moore, AIA, never does things the standard way. The Greenwich, Conn.-based architect bucked convention in 1993 by turning down a coveted partnership at well-regarded Shope Reno Wharton. Instead, he started his own firm. (It operated for many years as Kaehler/Moore Architects, with separate studios for Moore and then-business partner Laura Kaehler, AIA, but since 2008 he is the sole principal at Joeb Moore & Partners.) Recessions typically encourage safer design choices, but Moore has spent the past few years taking architectural risks: His work has grown more sculptural and abstract. And the projects themselves all contain unexpected moments designed to surprise and delight.
For example, the minimalist Bridge House, which won a 2013 Residential Architect Design Award, contains a powder room with a pyramid-shaped ceiling coated in high-gloss orange paint. A skylight at the top of the pyramid lets sunlight wash the walls, which Moore compares to the outside of a jelly bean. “It’s one of those moments where nature, architecture, and art all come together and you get to participate,” he says. “We’re trying to use absence or unexpected experiences to trigger a response or feeling. That’s the art of architecture.”
Lately, Moore and his 15-person staff have had many opportunities to create such experiences. They’ve developed something of a sub-specialty in remodeling and adding onto mid-century modern houses—a rich source of work in their Connecticut and suburban New York City region. Many of his clients for these and other projects work in related fields such as graphic design or exhibition design, and Moore sees them as collaborators.
In fact, collaboration among peers and across disciplines is a major theme of his. He tries to team up with landscape architects whenever possible. “Landscape is the first thing clients tend to cut,” he says. “We’ve been arguing that it’s possibly more important than the building. Our projects always involve a cultural landscape as well as a physical landscape.” And while the firm still uses outside general contractors the majority of the time, it’s also created a design/build division called JB Construction. The company has built five projects so far, all smaller jobs with relatively tight budgets.
Moore and his cohorts build lots of models, too—both virtual and (especially) physical ones. Examples of the latter fill the storefront windows of the firm’s office in downtown Greenwich. “We use the models as a powerful tool to help clients understand the process,” he explains. “They show how we think and work. Also, we use these conceptual models as a design tool to remind us what the fundamental principles are of a project.”
Along with the mid-century modern remodels and a clutch of other interesting renovations, Moore has been enjoying designing second homes. “Clients are willing to be more playful and take more risks with vacation homes,” he says. “It’s more creative and inventive.” He’d like to take on more small-scale institutional and commercial work. And he recently finished his own master bath renovation—no doubt with input from his wife, Jennifer, a pediatrician who also has an architecture degree.
Moore extols the virtues of his employees, whom he calls “brilliant and collaborative in their own way.” Many of them are former students; he teaches at Columbia University and also co-teaches Yale University’s first-year graduate housing studio, led by Alan Organschi.
It’s easy to imagine Moore as a terrific teacher. He loves to riff on ideas about architecture, art, and culture—always in an engaged, respectful way. This constant, rich flow of thinking and analysis must have a positive effect on his work, which has evolved at a remarkable pace. “Our work at this point is about important moments, key spatial events, light, air, openness,” he says. “It’s less about geometry and more about the experiential and the physical.”