With its glass walls, off-center hip roof and soaring monitor, t…
With its glass walls, off-center hip roof and soaring monitor, this house's great room wing cuts a dashing figure.
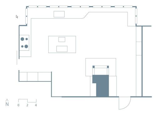
The great room's trapezoidal plan subtly emphasizes the room's g…
The great room's trapezoidal plan subtly emphasizes the room's generous size.
Low cabinets delineate cooking, dining, seating, and office area…
Low cabinets delineate cooking, dining, seating, and office areas in an otherwise open space.
The bedroom wing departs dramatically from the great room wing, …
The bedroom wing departs dramatically from the great room wing, with a linear floor plan topped by a roof with a corner-to-corner ridge beam.
Many of the house's furnishings were fabricated for this project…
Many of the house's furnishings were fabricated for this project, including a custom bed clad in cherry "shingles."
Krause, Johansen
The soaring second floor of the house, clad in semi-transparents…
The soaring second floor of the house, clad in semi-transparentstained cedar shingles, sits atop the granitesheathed lower level.
Krause, Johansen
The soaring second floor of the house, clad in semi-transparents…
The soaring second floor of the house, clad in semi-transparentstained cedar shingles, sits atop the granitesheathed lower level.
Art Grice
Fresh air and light stream in through the clerestories on the ho…
Fresh air and light stream in through the clerestories on the home’s west side. A massive granite fireplace anchors the living room.
Krause, Johansen
Fresh air and light stream
in through the clerestories.
Krause, Johansen
The dining area.
Krause, Johansen
The master bedroom is on the same level as the main living areas…
The master bedroom is on the same level as the main living areas—part of an age-in-place plan that includes an elevator and door openings
wide enough for a wheelchair.
Light fixture.
Head board and base board.
Benjamin Benschneider
Placing the shower tiles in a vertical pattern adds a nice touch…
Placing the shower tiles in a vertical pattern adds a nice touch to the tile work and allowed me to give it a somewhat random feel, says architect Nils C. Finne.
Benjamin Benschneider
A sapele and blackened steel bench designed by Finne provides a …
A sapele and blackened steel bench designed by Finne provides a convenient place for towels and clothing.
Benjamin Benschneider
There are no sight lines from neighboring properties into the ba…
There are no sight lines from neighboring properties into the bath, but a hidden shade pulls down anyway to provide extra privacy.
Benjamin Benschneider
The tub and vanities look out over the scenic Snoqualmie Valley.
Benjamin Benschneider
Many components of this kitchen were custom-fabricated, such as …
Many components of this kitchen were custom-fabricated, such as the resin and CNC-milled cabinets; cast-glass bar counter; hand-blown glass light fixtures; and steel wall panels, which were left outside to weather for three months.
Benjamin Benschneider
New clerestories bring natural light into the kitchen, and radia…
New clerestories bring natural light into the kitchen, and radiant-heated terrazzo floors provide even warmth.
Benjamin Benschneider
In the southwest corner, an oval tub sits in a steel frame with …
In the southwest corner, an oval tub sits in a steel frame with a laser-cut pattern resembling vine runners, which is repeated on the valances.
Benjamin Benschneider
Over the sinks, architect Nils C. Finne added large mirrors, sus…
Over the sinks, architect Nils C. Finne added large mirrors, suspended in thin steel frames, that reflect patterns and light from the continuous windows behind them. They contribute a moment of glamour to an otherwise restrained room, and they do sway, underscoring the sense of hovering lightly in space.
Benjamin Benschneider
With its new gabled fir ceiling, cherry cabinets, and limestone …
With its new gabled fir ceiling, cherry cabinets, and limestone floors and countertop, the bath plays off its natural setting.
Benjamin Benschneider
Planks from the same elm tree top off the island and the matchin…
Planks from the same elm tree top off the island and the matching dining table. The long outside edge was left raw for visual and tactile interest.
Benjamin Benschneider
Benjamin Benschneider
Benjamin Benschneider
Glass mosaic tiles in shades of blue-green add a touch of color …
Glass mosaic tiles in shades of blue-green add a touch of color to the limestone floor, the bathtub surround, and the shower floor.
Benjamin Benschneider
Benjamin Benschneider
The undulating cabinet fronts in this Seattle kitchen contrast w…
The undulating cabinet fronts in this Seattle kitchen contrast with the rough texture of plaster backsplash tiles.
Finne Architects, Seattle
Benjamin Benschneider
The FOSS pendant light, by FINNE Architects, is made of handblow…
The FOSS pendant light, by FINNE Architects, is made of handblown glass. It gets its name from the Norwegian word for "waterfall."
Benjamin Benschneider
Furniture and lighting design are logical sidelines for Seattle …
Furniture and lighting design are logical sidelines for Seattle architect Nils Finne, AIA. He often creates custom pieces for his residential projects, and adapts them for other buyers on a made-to-order basis. "Compared to implementing and executing architecture, it's more manageable, in a sense, and more immediate," he says. His custom SVING bench, completed in June, joins sinuous strips of Sapele wood with legs of blackened steel.
1
of 19
Benjamin Benschneider
Lake Forest Park is a 1950s modern residence that Finne remodele…
Lake Forest Park is a 1950s modern residence that Finne remodeled from top to bottom. As in many of his projects, he opened the roof with a generous amount of clerestory glazing.
Benjamin Benschneider
Finne’s affinity for midcentury Pacific Northwest modernism is…
Finne’s affinity for midcentury Pacific Northwest modernism is evident in the seamless blend of new work and original structure.
Benjamin Benschneider
A glass partition, pocket door, and clerestory allow the master …
A glass partition, pocket door, and clerestory allow the master bedroom to share light with the dressing area and master bath.
Benjamin Benschneider
Cabinetry throughout the house bears a CNC-milled panel of Finne…
Cabinetry throughout the house bears a CNC-milled panel of Finne’s design.
Eric Hausman
Eagle Harbor, a project that took Finne to Michigan’s Upper Pe…
Eagle Harbor, a project that took Finne to Michigan’s Upper Peninsula, is so close to the shore of Lake Superior that storm-driven spray sometimes splashes the house.
Eric Hausman
The house’s main living space constitutes a lakefront viewing …
The house’s main living space constitutes a lakefront viewing platform. A wood screen defines a separate space at the entry.
Eric Hausman
A dining table of Finne’s design echoes the shape of the islan…
A dining table of Finne’s design echoes the shape of the island countertop.
Benjamin Benschneider
Finne’s Christian Science Reading Room converted a 1905 bungal…
Finne’s Christian Science Reading Room converted a 1905 bungalow for public use while preserving its residential scale.
Benjamin Benschneider
The interior opens to a new roof framed and planked in Douglas f…
The interior opens to a new roof framed and planked in Douglas fir. The painted gable wall is patterned with deliberate randomness, a recurring theme in Finne’s work.
Benjamin Benschneider
Finne’s built in cabinetry and reading desks are integral to t…
Finne’s built in cabinetry and reading desks are integral to the design.
Benjamin Benschneider
A screen of sawn basalt slabs defines a private seating area.
Benjamin Benschneider
The desk legs are aluminum, cast in a pattern of Finne’s desig…
The desk legs are aluminum, cast in a pattern of Finne’s design and coated in bronze.
courtesy of Finne Architects
The building’s roof is an assemblage of warped planes, another…
The building’s roof is an assemblage of warped planes, another motif in Finne’s work.
courtesy of Finne Architects
The building’s roof is an assemblage of warped planes, another…
The building’s roof is an assemblage of warped planes, another motif in Finne’s work.
courtesy of Finne Architects
The main level’s elevation, some 20 feet above grade, give it …
The main level’s elevation, some 20 feet above grade, give it the feeling of a tree house.
Benjamin Benschneider
The Tind table combines a water jet-cut steel top with bamboo le…
The Tind table combines a water jet-cut steel top with bamboo legs that seem to have been extruded through it.
Benjamin Benschneider
The Skli (Norwegian for “slide”) lighting fixture is named f…
The Skli (Norwegian for “slide”) lighting fixture is named for its suspended screen, which Finne formed by hand from glass rods.
Benjamin Benschneider
Patterns that Finne develops for furnishings and hardware often …
Patterns that Finne develops for furnishings and hardware often find their way into other building elements, such as this stair railing.
Benjamin Benschneider
Designing seemingly incidental hardware, like this custom stainl…
Designing seemingly incidental hardware, like this custom stainless steel towel bar, gives Finne a fine-grained control of his projects.
Nils Finne, AIA, has long exemplified the highly skilled regional practitioner. Based in Seattle, he draws on Asian, Scandinavian, and mid-century modernist influences in work that distills the environmental and cultural currents of the contemporary Pacific Northwest. But the Internet recognizes no regional boundaries, and in recent years Finne has seen his base of potential clients broaden to include anyone who can type “Seattle modern architect” into a web browser. “Over the last three or four years, the Internet has become the primary vehicle for clients to find us,” Finne says, “and it has made my work increasingly available to a national audience.” His four-person firm, Finne Architects, recently completed custom homes in Massachusetts and northern Michigan, has houses under construction in North Carolina and Oregon, and is in design on projects in Texas and California. The North Carolina clients contacted Finne after seeing his Michigan house online. “They called me from London and said they wanted to talk about a new house in North Carolina,” he says. “That’s the new world right there. It’s a phenomenal development, and it’s kept us in a much better position during the recession.”
Despite his deep connection with the Pacific Northwest, Finne enjoys adapting his work to new settings. Of the Massachusetts project, he notes, “It became more and more rooted in New England as we went along. I didn’t want to just plant a Seattle house in Ipswich, Mass.” But exploring new territory isn’t as different from working at home as one might expect. “The tension between localism and more universal and general design principles should be present in every project,” he says. The challenges of remote projects lie as much in communication and process as in design. “You have to be very articulate about the design and good at presenting images. You have to become much more aware about why you’re doing things,” says Finne, who finds writing a useful test of the clarity of his ideas. “If your thinking about something is sloppy, that sloppiness shows up in your email,” he says.
Wherever Finne ventures, two elements of his approach remain as strong as ever: the furniture he designs for most projects and the deftly managed natural light that animates all of his buildings. Finne developed his mastery of the latter as project architect for Richard Meier’s Getty Center Museum in Los Angeles, where the task was delivering precise levels of light onto a work of art. “Those principles, from gallery design, are universal in architecture,” he says. “You deal with the specifics of how light lands on the building. If it’s handled well, it’s a delight; if it’s handled poorly, it’s a disaster. One of my favorite devices is a high clerestory window, rather than a direct horizontal aperture.” The soft, diffuse light that fills his interiors also saves energy, he notes, adding that clients often tell him, “We haven’t turned the lights on in days.”
Finne’s custom furniture illuminates his work in other ways. With the addition of furnishings that reflect the building’s overall aesthetic, he says, “the level of the design becomes highly personal. It’s localism taken to the ultimate degree.” Creating tables, beds, lighting fixtures, and bathroom hardware also allows Finne and his associates to experiment with design ideas. “We draw these things at full scale,” he says. “You can’t manipulate the design of a building at full scale.” The results become part of the firm’s visual vocabulary. “These patterns and CNC techniques cross over from the furniture into stair railings and things like that,” says Finne, who has been working for the past three months on a pair of 14-foot-long lighting fixtures made of fused glass rods. “It’s a labor of love,” he admits. “I choose not to even try to bill for most of this design work. The clients will pay for something to be made; that’s how it becomes affordable.” Because it amplifies the power of his buildings, the furniture yields marketing dividends, Finne believes. But its primary purpose is to complete the architecture, and in so doing, it justifies whatever time it takes. “In all questions of form,” Finne says, “I believe you have to take as much time as it takes for the form to reach its ultimate level of simplicity. The element of time—you just can’t divorce that from good design.”
Firm Specs:
Years in practice: 21; Active projects: 5; Projects completed in 2011: 2; Areas of interest: Custom new homes, renovations, and lighting and furniture design
Located on a large, private lot in the Seattle suburb of Redmond, this custom home combines a clear and incisive plan, thoughtfully shaped spaces, inventive detailing, and meticulous craftsmanship in a tour-de-force of residential architecture and construction.
The great ones make it look easy. Houses, that is. When a custom home is fully resolved—when the design is inspired, the craftsmanship spot-on, and owner, architect, and builder fully in sync—the result betrays nothing of the effort expended in its creation.