IBACOS-Led Lab Home Tests Approaches for Market-Rate Net-Zero Production Housing

3 MIN READ

From the outside, the house in Pittsburgh’s Cobblestone Estates community looks much like the others on its street. But this is not your average home.

Built by S&A Homes, the Energy Efficiency Lab Home is the latest demonstration project from IBACOS, a building science consulting firm and team leader for the Department of Energy’s Building America program, and its Best Practices Research Alliance, a collaborative research-based community focused on improving the quality and performance of homes. Throughout the structure, carefully selected building techniques and systems aim to stretch the limits of efficiency to determine the best methods for making net-zero homes affordable to build on a production scale.

The 2,100-square-foot dwelling, a joint effort by IBACOS and S&A, was completed last fall and will undergo round-the-clock performance testing for the next three years. With the aim of attainability and affordability for builders replicating techniques, the team intentionally chose off-the-shelf products. It also used design methods that any builder can duplicate—albeit with some training and rethinking required because they are far more detailed and precise.

BUILDING TECHNIQUES
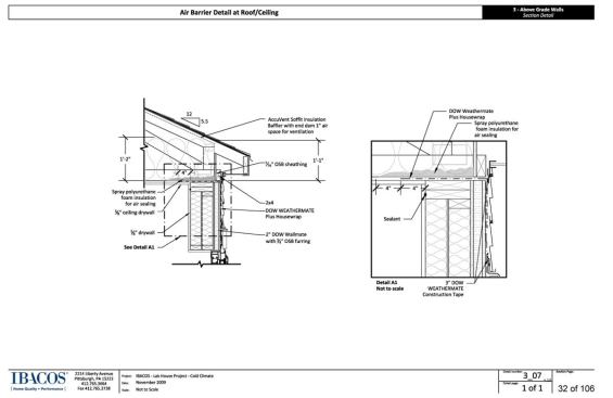
Before any construction began, however, the team held integrated design meetings and completed an intensive modeling process that included a review of 35 wall assembly options—some traditional, some never attempted before—that could achieve the desired performance of R-40 for above-grade walls, R-10 under the slab, R-20 for basement walls, and R-60 attic.

In the end, the crew constructed 2×8 walls with staggered 2x4s, which provide a thermal break, with blown fiberglass insulation and 2 inches of foam on the exterior. Choosing this modified traditional system also ensured that panelization could still be achieved, an essential component for ensuring acceptance and replication.

“You have to keep in mind that the whole point is to identify cost-effective and constructable solutions that can be used by a production builder to move toward the net-zero-energy level of performance,” says Kevin Brozyna, building performance specialist and Lab Home program manager for IBACOS.

Further experimentation came with the selection of Dow’s Wallmate foam for the exterior. Designed for basement finishing, the panels include a recessed channel for a furring strip, a feature that allowed the framers to use inexpensive common framing nails to install the foam rather than longer, more expensive screws that would typically be required to get through the thickness of the foam and the surface-applied furring strips.

Two inches of extruded polystyrene foam board (XPS) helped bring the basement slab to R-10. The roof clearance was raised several inches to accommodate 13 inches of fiberglass insulation at the eaves and 22 inches of fiberglass throughout the rest of the attic to reach R-60, with housewrap lapping over the top of the second-floor wall to ensure a continuous air barrier.

To see the impact of each step in the envelope, the team conducted blower-door tests multiple times: after housewrap was taped and sealed but before additional sealing (3ACH@50PA); after spray foaming strategic areas of the attic, over top plates, and any electrical or service penetrations in the ceiling (0.88ACH); after applying spray foam in the band joists (0.77ACH); after sealing penetrations in the exterior walls, blowing in insulation, and installing drywall (0.65); and after final caulking, which came in at 0.54ACH, surpassing the team’s goal of 0.6.

About the Author

Upcoming Events

  • Protecto Wall VP Standard Installation Video

    Webinar

    Register for Free
  • How Right-Sized Plumbing Saves Money, Saves Water, and Protects Wellness

    Webinar

    Register for Free
  • Building Careers from the Ground Up: The IUPAT Floor Covering Apprenticeship and Training Program

    Webinar

    Register for Free
All Events