Residential

EHDA Grand Award: Caterpillar House

Caterpillar House

2 MIN READ

On a bluff in the Santa Lucia Preserve in Carmel, Calif., the Caterpillar House sits as a striking example of how sustainable goals, client needs, traditional values, and modern design can come together to form a house as beautiful and functional as the breathtaking land surrounding it.

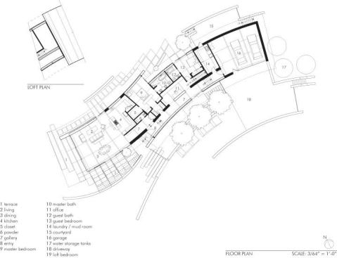
Among the homeowner’s wishes were features in tune with her eco-minded principles and a design that reflected the ideals of the Cliff May ranch house she grew up in. To embody the spirit of that style, the team incorporated some of its core elements, including low roof lines, an informal entry, and a casual floor plan that revolves around the kitchen, and modernized it into an elegant interpretation that is open and airy, with a more graceful shape and expanses of glass that take in the surrounding property.

Accommodating that much glass while still achieving performance levels 49% above Title 24-code guidelines required creativity and careful planning. The elongated, slightly curved east-west layout maximizes passive solar gain, while concrete floors and carefully placed rammed-earth walls act as a thermal mass; trellises and overhangs shade the south- and west-facing low-E windows. These features, combined with ceiling fans and optimal cross ventilation, eliminated the need for air conditioning and allowed for only zoned radiant floor heating. The south-facing roof over the living room accommodates an 8-kW solar array while opening up the space to northern views.

The client’s willingness to incorporate more elaborate green features—along with her desire for a lush landscape and garden—allowed for a 27,300-gallon rainwater harvesting system to support 100% of site irrigation. All plantings are native and drought-tolerant and 98% of the site is permeable.

“I really love how much of the client is in this house,” says architect Jonathan Feldman, AIA. “I love how simple and pure the forms are and at the same time how well the building functions.”

Project Details:

Project

Caterpillar House, Carmel, Calif. | Size: 2,800 square feet | Cost: Withheld | Completed: January 2010 | Certification: LEED-Platinum | Architect: Feldman Architecture, San Francisco | Builder: Groza Construction, Monterey, Calif. | Verifier: Bright Green Strategies, Santa Cruz, Calif.

Green Highlights

Energy: passive solar orientation / Loewen and Ventana custom low-E windows / rammed-earth walls / BioBased 501 spray-foam insulation / Energy Star–rated appliances / dimmer- and motion sensor–controlled lighting / CFL lighting / 8-kW UniSolar PV array

Resources: FSC-certified cabinetry / reclaimed wine cork flooring

IAQ: low-VOC countertops / zero-VOC lime plaster shower finish and Yolo paints

Water: 27,300-gallon rainwater catchment system / drought-tolerant plants / 98% permeable site / low-flow Kohler bath fixtures


PRODUCTS

Windows: Loewen, Ventana / Doors: Loewen, Weiland / Insulation: BioBased / Appliances: Jenn-Air, Kenmore, KitchenAid, Thermador, Varenna, Whirlpool / Countertops: Corian / Kitchen Faucets: KWC / Bath Faucets & Showerheads: Kohler / Toilets: Toto / Paints & Stains: Yolo Colorhouse / Interior Lighting: DaSal Industries, USA Illuminations, Modernica, Translite Sonoma, Bartco, Alkco, Prudential / Exterior Lighting: USA Illuminations, Sea Gull Lighting, Hunza, B-K Lighting / Alternative Energy: Uni-Solar

Click here to see all the 2011 EHDA winners

About the Author

Upcoming Events

  • Protecto Wall VP Standard Installation Video

    Webinar

    Register for Free
  • How Right-Sized Plumbing Saves Money, Saves Water, and Protects Wellness

    Webinar

    Register for Free
  • Building Careers from the Ground Up: The IUPAT Floor Covering Apprenticeship and Training Program

    Webinar

    Register for Free
All Events