Residential

EHDA Grand Award: Union Street Residence

Union Street Residence

2 MIN READ

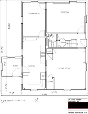
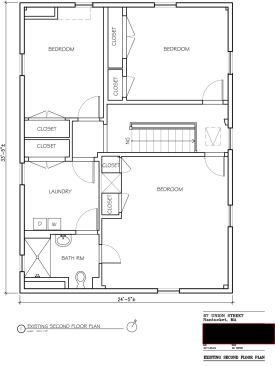
Restored within the strict guidelines of Nantucket Island’s Historic District, this 264-year-old Cape still pays homage to its Quaker-inspired design roots. But behind the simple lines and cedar shake lies a range of modern conservation-minded features that enhance the home’s immediate and long-term performance, proving that sustainability can be integrated into existing homes without compromising authenticity.

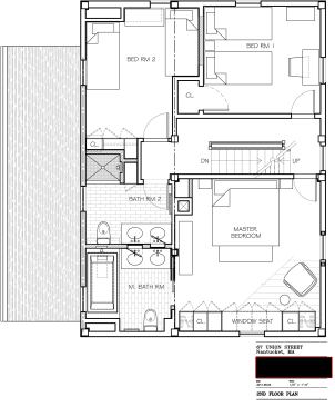
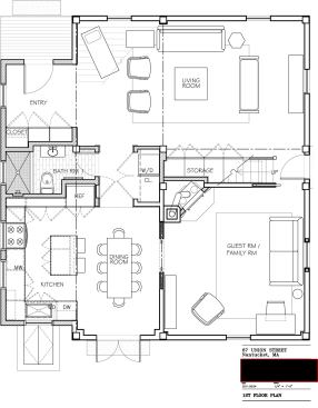
In addition to preserving and modernizing the LEED-Gold house, architect Michele Kolb added 260 square feet for a new kitchen, bathroom, and entry in keeping with the period. Among the many challenges posed by this whole-house renovation were meeting LEED insulation and air sealing requirements, installing new mechanical and ventilation systems, and restoring the original single-pane window sash to conserve energy while meeting historic architectural standards.

Further energy improvements included sealing and insulating the existing crawlspace; installing new exterior sheathing; insulating the envelope with spray foam; and installing zone-controlled HVAC, HRV, and ERV equipment and high-efficiency water heating. Low-flow faucets and fixtures as well as water-conserving landscaping contribute to water-efficiency goals.

The team specified American Clay plaster, reclaimed oak floors, and pine ceilings for their natural and environmental qualities; painted surfaces were finished with Benjamin Moore’s Aura low-VOC products; and floors were oiled.

To many in the green building community, restoring an existing home is in itself a laudable step toward sustainability. In awarding a home built in 1747, the judges couldn’t agree more.

Project Details

Union Street Residence, Nantucket, Mass. | Size: 1,810 square feet | Cost: $273 per square foot | Completed: August 2010 | Certification: LEED-Gold | HERS Rating: 69 | Architect: Rosenberg Kolb Architects, New York City | Builder: Knapp Construction, Nantucket | Verifier: Conservation Services Group, Westborough, Mass.

Green Highlights

Energy: Sealed crawlspace / insulated foundation and slab / Icynene spray insulation throughout / restored historic window sash for tightness / Life Breath HRV, 98% AFUE York gas furnace / BMPlus Zone Control system / Rinnai LS Series tankless hot water heater / Emerson Blue Single Stage thermostat / Energy Star appliances |

Resources: locally sourced marble countertops / cedar shingle roof and siding / oil-finished reclaimed oak floors |

IAQ: American Clay plaster / Benjamin Moore Aura low-VOC paint / Blanchon oil-finished wood floors / MERV-13 filters / Panasonic WhisperGreen exhaust fan / Johns Manville urea formaldehyde–free duct insulation |

Water: Toto Eco Supreme toilets / drought-tolerant landscaping / high-efficiency drip irrigation with Irritrol Total Control system


PRODUCTS

Kitchen & Bath Faucets: Barber Wilsons / Toilets: Toto / Interior Doors: Lemieux Doors / Interior Lighting: Go Home / Exterior Lighting: Campo de’ Fiori / Paints & Stains: Benjamin Moore / Flooring & Carpeting: Bois Chamois / HVAC: Airia, NovelAire, York / Water Heating: Rinnai / Wall Finishing: American Clay / Ventilation: Panasonic

Click here to see all the 2011 EHDA winners

About the Author

Rick Schwolsky

Rick Schwolsky, construction manager for the 2015 Greenbuild Unity Home, has worked in the residential construction industry for more than 40 years with a special focus on high-performance homes. Before joining Hanley Wood in 1993 as BUILDER’s construction editor and later launching EcoHome magazine, he was president of Grafton Builders, a successful custom home building company in Vermont. 

Upcoming Events

  • Protecto Wall VP Standard Installation Video

    Webinar

    Register for Free
  • How Right-Sized Plumbing Saves Money, Saves Water, and Protects Wellness

    Webinar

    Register for Free
  • Building Careers from the Ground Up: The IUPAT Floor Covering Apprenticeship and Training Program

    Webinar

    Register for Free
All Events