Residential

EHDA Merit Award: Sustainable Stuart Duplex

Sustainable Stuart

1 MIN READ

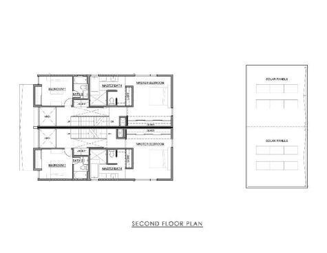
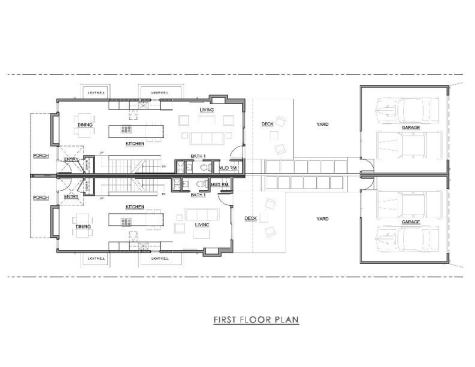
With a Walk Score of 76, this urban infill duplex is accessible to the shops, restaurants, parks, and public transit of Denver’s centrally located Highland neighborhood. For the spec project, architect Matthew Lawton maximized square footage for each unit with a simple and open interior layout that includes flexible-use rooms, strategically placed windows, and built-ins. A third-floor window wall brings in light, which penetrates down the open-riser, open-guardrail stairwell into the center of each residence.

A super-insulated envelope greatly reduces the structure’s energy load, while the 2.88-kW PV arrays on each garage provide 50% of residents’ electrical needs. Continuous hot water is supplied by a 96% efficient A.O. Smith Vertex direct-vent water heater with recirculation pump. Artistic, resource-efficient elements abound, including wall surfaces made from wine corks and cast-resin backsplash panels of recycled materials and bamboo.

Outside, the third story is set back to tie in with the massing of adjacent houses. The judges were impressed how well the contemporary design fits in with the older neighborhood, describing it as “well-done modernism.”

Project Details

Sustainable Stuart, Denver | Size: 2,043 square feet (unit 1); 1,981 square feet (unit 2) | Cost: $225 per square foot | Completed: April 2011 | Certifications: LEED-Gold, Energy Star, EPA Indoor airPLUS | HERS Rating: 41 | Architect: Sexton Lawton Architecture, Denver | Builder: Carter Customs, Centennial, Colo. | Developer: Imagine Infill, Denver | Verifier: Populus, Boulder, Colo.


PRODUCTS

Windows & Exterior Doors: Andersen / Roofing: GAF / Siding: James Hardie / Decking: MoistureShield / Landscape Irrigation: Rain Bird / Appliances: Bosch / Kitchen Faucets: Grohe / Cabinetry: KitchenCraft / Countertops: Caesarstone / Toilets: Kohler / Bath Faucets & Showerheads: Moen / Interior Lighting: Cooper Lighting / Paints & Stains: Sherwin-Williams, Sikkens / Flooring & Carpeting: Ann Sacks, Shaw / HVAC: Carrier, Panasonic / Water Heating: A.O. Smith / Wall Tile: Showercork

Click here to see all the 2011 EHDA winners

About the Author

Jennifer Goodman

Jennifer Goodman is a former editor for BUILDER. She lives in the walkable urban neighborhood of Silver Spring, Md.

Upcoming Events

  • Protecto Wall VP Standard Installation Video

    Webinar

    Register for Free
  • How Right-Sized Plumbing Saves Money, Saves Water, and Protects Wellness

    Webinar

    Register for Free
  • Building Careers from the Ground Up: The IUPAT Floor Covering Apprenticeship and Training Program

    Webinar

    Register for Free
All Events