Residential

Merit Award: Key Peninsula, Gig Harbor, Wash.

Key Peninsula Residence

2 MIN READ

Deconstructing their old waterfront cabin preserved the site and many fond memories for the owners of this LEED-Gold residence on Puget Sound. The new home’s cottage-esque design took its architectural cues from the original structure, while its salvaged materials will carry the cabin’s legacy into its next life. Beyond their sentimental value, the re-used materials, combined with jobsite recycling, diverted 98% of the project’s construction waste from the local landfill.

“From the start there was a strong desire to incorporate as many sustainable features as were feasible and practical,” says project architect Mike Butrim of David Vandervort Architects. “Environmentally preferred materials were used throughout, and the home achieved a HERS 46 rating incorporating exterior insulation, a ground-source heat pump, solar water heating, and a 4-kW solar PV system.”

FSC-certified framing materials, fly-ash concrete, low-VOC paints and finishes, and reclaimed beams and local stone complete the green spec package conceived for the home. A focus on water-efficient fixtures, landscaping, irrigation controls, and a rainwater catchment system address this important attribute.

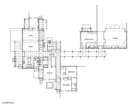
The judges liked the way the unique design—featuring three parallel, attached sections staggered so that each offers a connection to and view of the water—nestled onto the existing site and created a “little village” of smaller-scale spaces that reduced the overall mass of the building. “This is a sizeable house,” one judge commented, “but it feels smaller because of the way it spreads out and fits into the landscape.”

Project Details

Project
Key Peninsula, Gig Harbor, Wash. | Size: 3,200 square feet | Cost: Withheld | Completed: July 2009 | Certification: LEED-Gold | HERS Rating: 46 | Architect: David Vandervort Architects, Seattle | Builder: Joe’s Bay Construction, Lakebay, Wash. | Verifier: O’Brien and Co., Seattle

Green Highlights
Energy: US Green Fiber, Johns Manville insulation / ClimateMaster ground-source heat pump / Loewen low-E argon-filled windows / Sanyo 4-kW PV system / Miele Energy Star dishwasher / Qtran high-efficiency lighting | Resources: site-reclaimed cedar siding / Paperstone recycled-content countertops | IAQ: Sunpure MERV-11 air filtration / Benjamin Moore, Safecoat, Timberpro, and Osmo Polyox low-VOC finishes / Pacific Crest formaldehyde-free cabinets | Water: Grohe WaterSense-certified faucets and showerheads / Sterling WaterSense-certified dual-flush toilets


PRODUCTS
Windows: Loewen / Doors: Real Carriage Door Co. / Siding: Cedar, custom milled from site trees / Roofing: AEP Span / Insulation: US Green Fiber (cellulose); Johns Manville (batts) / Appliances: Miele; GE / Countertops: Paperstone; Concreations / Cabinetry: Pacific Crest / Kitchen Faucets: Rohl / Bath Faucets, Showerheads: Grohe / Toilets: Sterling / Flooring: Ecoprocoat; Osmo / Paints/stains: Benjamin Moore; AFM Safecoat; Timber Pro / Interior Lighting: Lightolier; Belfer; Teka / Exterior Lighting: B-K Lighting / HVAC: ClimateMaster / Alternative Energy: Sanyo (PV); Apricus (solar thermal); Xantrex (inverter)

Click here to see all 2010 EHDA winners.

About the Author

Rick Schwolsky

Rick Schwolsky, construction manager for the 2015 Greenbuild Unity Home, has worked in the residential construction industry for more than 40 years with a special focus on high-performance homes. Before joining Hanley Wood in 1993 as BUILDER’s construction editor and later launching EcoHome magazine, he was president of Grafton Builders, a successful custom home building company in Vermont. 

Upcoming Events

  • Happier Homebuyers, Higher Profits: Specifying Fireplaces for Today’s Homes

    Webinar

    Register for Free
  • Sales is a Sport: These Tactics Are the Winning Play

    Webinar

    Register for Free
  • Dispelling Myths and Maximizing Value: Unlock the Potential of Open Web Floor Trusses

    Webinar

    Register for Free
All Events