Residential

Merit Award: Single-Family Sustainable Residence, Saratoga Springs, N.Y.

Single-Family Sustainable Residence

2 MIN READ

At first glance, the Single-Family Sustainable residence doesn’t scream “green building.” But while the home’s traditional, barn-inspired style meshes well with its Saratoga Springs, N.Y., locale, a laundry list of high-performance features and products—for which it achieved the highest levels of both LEED for Homes and the National Green Building Standard—quickly set this dwelling apart.

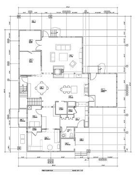
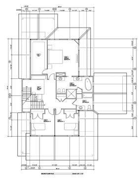
“The home integrates modern open-floor-plan living with a traditional local vernacular,” describes project architect Phinney Design Group. The airy layout promotes livability as well as daylight distribution and passive ventilation, including a three-level central stair topped with a clerestory and a cupola that creates a natural stack effect to exhaust summer heat.

Energy performance is assured with an 8-kW solar array, solar water heating with tankless backup, high-efficiency HVAC, spray-foam and cellulose insulation to R-21 in the walls and R-40 in the ceiling, low-E insulated windows, cool roofing, and overhangs. A concrete floor provides thermal mass in the south-facing three-season sunroom. The efforts paid off, as the judges praised the home for achieving a HERS rating of 27 despite its 4,000-square-foot size.

“The mission of the project was to build a house that suits the physical, aesthetic, and ethical needs of the clients’ family,” the design team says. “Within these objectives, building a green home that was healthy, minimally impactful to the earth, and more conservative with natural and economic resources both in construction and during its lifetime was all vital.”

In keeping with those goals, sustainability and durability decisions touch nearly every aspect of the house, including locally sourced cedar siding, stone, and cabinetry; moisture-resistant sheathing; dual-flush toilets, drip irrigation, and rainwater harvesting; and low-VOC paints and heat recovery ventilation.

Project Details

Project
Single-Family Sustainable Residence, Saratoga Springs, N.Y. | Size: 4,059 square feet | Cost: $250 per square foot | Completed: October 2009 | Certifications: LEED-Platinum; NGBS-Emerald | HERS Rating: 27 | Architect: Phinney Design Group, Saratoga Springs, N.Y. | Builder: McCormick Carpentry, Galway, N.Y. | Verifier: Center for Ecological Technology, Florence, Mass.

Green Highlights
Energy: Marvin low-E, argon-filled wood windows / Demilec spray-foam insulation and Benolec Beno-Therm cellulose insulation / solar hot water with Takagi tankless backup / Sunpower 8-kW PV panels / hot-water circulation loop | Resources: locally sourced cedar siding, stone, cabinetry, walls, and trim / engineered lumber / Huber Advantech sheathing | IAQ: Fantech HRV / Benjamin Moore low-VOC paint | Water: drip irrigation / Gerber Ultra dual-flush toilets / drought-tolerant landscaping / rainwater collection system


PRODUCTS
Insulation: Benolec; Demilec / Bath fixtures: Kohler / Toilets: Gerber / Flooring: Local red birch / Paint: Benjamin Moore / HVAC: Viessmann; Carrier; Fantech; Takagi

Click here to see all 2010 EHDA winners.

About the Author

Upcoming Events

  • Protecto Wall VP Standard Installation Video

    Webinar

    Register for Free
  • How Right-Sized Plumbing Saves Money, Saves Water, and Protects Wellness

    Webinar

    Register for Free
  • Building Careers from the Ground Up: The IUPAT Floor Covering Apprenticeship and Training Program

    Webinar

    Register for Free
All Events