RainShine House, Decatur, Ga.

Grand Award / Less Than 3,000 Square Feet

1 MIN READ

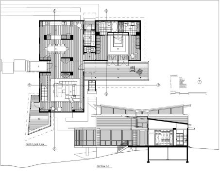
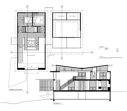
As an exercise in green design, this LEED Platinum–certified house puts a check in every column: passive solar, active solar, rainwater collection, natural daylighting and ventilation, energy-efficient electrical and mechanical systems, resource-conserving materials, a tight building envelope, low-VOC finishes, and no-irrigation landscaping. What got the attention of our judges, though, was that its environmental ethos also yields a thoroughly pleasing aesthetic experience.

Traditional styles can accommodate a green program, architect Robert M. Cain explains, “but modernism is much more adaptable to the principles of sustainable design.” The thin butterfly roof, which floats above a continuous glass clerestory and an artfully expressed steel structural frame, also offers the ideal vessel for rainwater collection and a discreet mounting platform for solar panels. But the house also acknowledges its more traditional neighbors in the symmetry of its façade. Our judges noted that the house balances abstract gestures with “the use of more traditional siding and the more traditional gray color.” One judge summed up the consensus of the panel by calling the result “a great combination of design with eco-features.”



Entrant/Architect/Interior designer: Robert M. Cain, Architect, Atlanta
Builder: Pinnacle Custom Builders, Decatur, Ga.
Landscape architect: L.F. Saussy Landscape Architects, Decatur
Living space: 2,800 square feet
Site: 0.36 acre
Construction cost: Withheld
Photographer: Paul Hultberg Photography

About the Author

Bruce D. Snider

Bruce Snider is a former senior contributing editor of  Residential Architect, a frequent contributor to Remodeling. 

Upcoming Events

  • Happier Homebuyers, Higher Profits: Specifying Fireplaces for Today’s Homes

    Webinar

    Register for Free
  • Sales is a Sport: These Tactics Are the Winning Play

    Webinar

    Register for Free
  • Dispelling Myths and Maximizing Value: Unlock the Potential of Open Web Floor Trusses

    Webinar

    Register for Free
All Events