Timberframing Company Builds Showcase Green Home

New Energy Works marks its Western expansion with a LEED Platinum project that displays the timberframing company's craftsmanship, innovation, and commitment to sustainability.

4 MIN READ

When timber-frame home builder New Energy Works (NEW) established a home base in Portland, Ore., to better service its clients throughout the western states, president Jonathan Orpin decided it also was time to build a demonstration home to showcase every aspect of the company’s 25-plus years of craft and sustainability expertise.

Orpin designed the house, which he now lives in with his family, with the help of NEW’s interior designer (and his wife), Maxine Bromfield, and staff architect Ty Allen. The house’s architectural expression of what Orpin calls “Mountain Relaxed” style, with its combination of low-slung and gently peaked roofs, varied ceiling and space volumes, wide roof overhangs, and use of natural materials, blends easily with the eclectic flavor of the existing neighborhood.

Aesthetics and quality are just as important to the house’s overall success as its efficient performance and sensitivity toward its environment. The house was designed and built according to the four equally vital principles on which Orpin believes sustainability is based: durable structure and efficient building envelope; thoughtful sourcing of materials with an emphasis on local, recycled, and low embodied energy; advanced mechanical systems; and beautiful design and craftsmanship.

Emphasizing one set of principles over the others creates an unbalanced result, and great craftsmanship and design not only raise the bar during construction but also inspire a home’s occupants to maintain the home over many generations, Orpin believes.

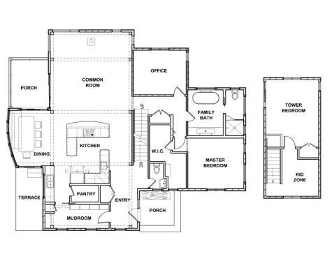
Providing 3,000 square feet of beautifully crafted living space, the house was built using a hybrid system of NEW’s traditional timber-frame joinery and structural insulated panels by Premier Building Systems, creating both a strong and an efficient envelope. The four-bedroom, three-bath house also incorporates enough sustainable features to earn it an expected LEED Platinum certification, including:

  • all FSC-certified new-sawn and reclaimed wood timbering, flooring, moldings, and exterior siding in a variety of species;
  • a vegetated roof above the detached one-car garage;
  • locally sourced materials;
  • American Clay‘s low-VOC clay-based wall plaster;
  • cellulose insulation;
  • reflective standing-seam metal roof by Custom-Bilt Metals;
  • low-flow water fixtures;
  • a 4,000-gallon rainwater collection, storage, and purification system.

Electricity generated by a 4.2 kW photovoltaic array combines with a solar thermal water heating system, energy-efficient appliances, high-efficiency heating and ventilation system, and LED, compact fluorescent, and halide lighting fixtures to ensure net-zero electrical performance.
In light of Portland’s mostly mild summers and the house’s air-tightness and insulation value, Orpin decided to go without air conditioning. “During our recent 95-degree hot spell, it never got above 79 degrees inside the house,” he says. “Out here we have a much more adaptable climate for living without air conditioning.”

The rainwater collection system will supply up to 70 percent of the home’s potable and water and landscape irrigation needs year-round, although the water harvest will be heavier in the colder months than during the summers. “In the winter I calculate we’ll be able to get 6,000 gallons per month off the roof, and our family needs are only projected to be 2,000 gallons per month. But in the summer we’ll be down to about 900 gallons per month in collecting,” Orpin says.

Though heavy on resource conservation features, the house isn’t light on luxuries. The interiors are spacious and warm and incorporate the custom cabinetry, moldings, and flooring crafted by NEW’s sister companies NEWwoodworks and Pioneer Millworks, and all wall surfaces are finished with clay-based plasters. The house centers around a primary gathering space, which Orpin and his family call “The Commons,” combining the kitchen, eating areas, and living room in one volume that maintains a cozy and intimate feeling despite its size and soaring ceiling.

The 1,000-square-foot walk-out basement level holds the family’s media nook, rec room, wine room, mechanical and laundry rooms, and guest suite. Above the garage, Orpin and his team incorporated a studio that serves as a home office along with a guest suite featuring a kitchenette and bathroom.

Throughout the home, the timber-frame structure is allowed to shine. Not only does pulling structural members inside the building envelope prevent thermal bridging and moisture problems, Orpin notes, but it also provides a wonderful visual experience.

“People really enjoy the ability to see structure, whether it’s timber-frame or a steel structure. There’s a visceral reaction to viewing what it is that’s holding our weather at bay and holding up the roof over our heads,” he says.

About the Author

Upcoming Events

  • Protecto Wall VP Standard Installation Video

    Webinar

    Register for Free
  • How Right-Sized Plumbing Saves Money, Saves Water, and Protects Wellness

    Webinar

    Register for Free
  • Building Careers from the Ground Up: The IUPAT Floor Covering Apprenticeship and Training Program

    Webinar

    Register for Free
All Events