141 Fifth Avenue, New York

New York

1 MIN READ

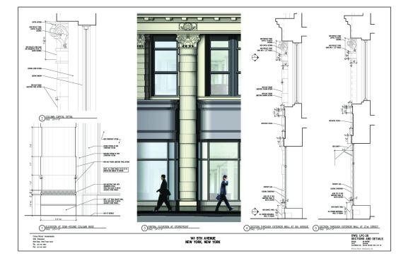
The building at 141 Fifth Avenue had good bones and a good pedigree, but over the years it has lost both its original tenants (small manufacturing businesses such as milliners, dressmakers, and printers) and many of its Beaux Arts detailing (urns, gargoyles, and even a copper-like dome and a little balcony on the corner). Like so many structures in the area, it was ripe for loft living—albeit not the kind of bohemian loft living that was en vogue a few decades ago. This would be loft living on a grander scale.

The architects from CetraRuddy set about re-creating many of those elaborate exterior details, although this time in fiberglass and cast-in-place molded stone rather than terra cotta. Inside, they exposed some of the original cast-iron columns, played up the floor-to-ceiling windows, and did what modern codes require of a residential building, making adjustments to allow more light, air, and ventilation.

That meant taking down part of the back of the structure. “In New York, you never want to demolish 1 square foot, so we created two new floors on the top of the building [to compensate],” says architect John Cetra. Because those floors are set back and somewhat hidden, they didn’t change the historic character of the building.

Inside, the challenge was to combine Old World graciousness with the demands of modern living. These are lofts with real walls, modern kitchens, and hidden, energy-efficient building systems. But you won’t find exposed ductwork or rugged brick walls here.

MERIT
Category: Adaptive re-use project
Entrant/Architect: CetraRuddy, New York
Builder: The J Cos., New York

About the Author

Upcoming Events

  • Protecto Wall VP Standard Installation Video

    Webinar

    Register for Free
  • How Right-Sized Plumbing Saves Money, Saves Water, and Protects Wellness

    Webinar

    Register for Free
  • Building Careers from the Ground Up: The IUPAT Floor Covering Apprenticeship and Training Program

    Webinar

    Register for Free
All Events