2009 Gold Nugget Awards: Ketchum Residence

Custom Residence, Ketchum, Idaho

1 MIN READ

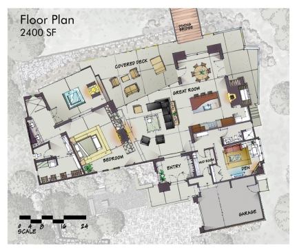
With its unusual arrangement of shed forms, this ruggedly beautiful, 2,400-square-foot residence seems almost accidental in its composition. But its volumes are actually a response to a variety of tough constraints. And in the end, its asymmetrical massing strikes the perfect balance.

Setbacks, easements, and client requests (with regard to room sizes and configurations) placed the home 13 degrees off axis to the mountain behind it. Not wanting to restrict views of the majestic ridge, the architects at Dahlin Group rotated a major window wall to face the land mass head on. This move, in turn, created the home’s unique interior geometry. The portion of the house that rests under roof—a succession of trapezoidal spaces that defy the notion of a home as a box—seems irregular, but there is a certain pleasing continuity to it. Orthogonal walls are clad in cedar and plaster, while angled walls are lined in rich mahogany.

The drama doesn’t stop there. Bracing members and ceiling heights vary at the angled window wall, dividing the principal shed and separating the interior living room from an adjacent 54-foot-wide, column-free covered porch. The steel truss spanning the porch is covered with spaced cedar siding and serves as a snow/sun screen. The siding is back-beveled to allow sky views from inside and to create evening shadow play.

Award: Grand for custom home under 5,000 square feet
Builder: Dilworth Construction, Bellevue, Idaho
Developer: Steve Rivera, Ketchum, Idaho
Architect/Land planner: Dahlin Group Architecture Planning, Pleasanton, Calif.

About the Author

Upcoming Events

  • Build-to-Rent Conference

    JW Marriott Phoenix Desert Ridge

    Register Now
  • Builder 100

    Dana Point, CA

    Register Now
  • Protecto Wall VP Standard Installation Video

    Webinar

    Register for Free
All Events