2009 Gold Nugget Awards: The Dalton

The Dalton, Pasadena, Calif.

1 MIN READ

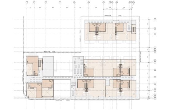
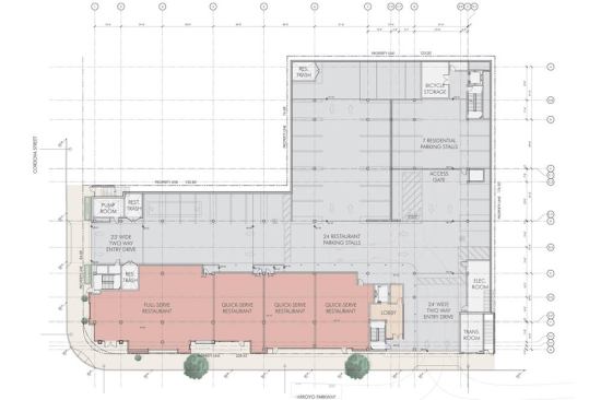
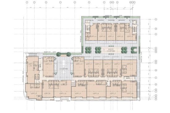
Urbanites who thrive in lively, bustling, walkable neighborhoods might say this project has it all. Located in the heart of Pasadena’s central business district, the 55 loft-style units in this handsome building are stacked on top of 7,000 square feet of ground-floor retail.

The Dalton’s prime location directly across the street from a major light-rail stop was a bonus not just for residents, but also for the developer. The adjacency allowed for maximum development through reduced parking requirements and allowances for increased density and building height.

The building repays the favor by proving that high-density development need not look utilitarian. Variations in scale, massing, window placement, and color—punctuated by public art at street level—give the structure an irresistible presence. For residents, courtyards and decks provide open space, natural light, and views of distant snow-capped peaks and California sunsets.

“The design contributes to the quality of the public realm at both the pedestrian-scale level and the building-scale level,” said one judge. “The building forms have a rhythm and proportion that respect and reinforce the colorful texture of this urban neighborhood.”

Award: Grand for mixed-use project
Builder: American General Constructors, Glendale, Calif.
Developer: Champion Development Group, Los Angeles
Architect: Studio One Eleven at Perkowitz + Ruth Architects, Long Beach, Calif.

Learn more about markets featured in this article: Los Angeles, CA.

About the Author

Upcoming Events

  • Protecto Wall VP Standard Installation Video

    Webinar

    Register for Free
  • How Right-Sized Plumbing Saves Money, Saves Water, and Protects Wellness

    Webinar

    Register for Free
  • Building Careers from the Ground Up: The IUPAT Floor Covering Apprenticeship and Training Program

    Webinar

    Register for Free
All Events