2010 Gold Nugget Awards: Gores Beach Villa

Gores Beach Villa, Malibu, Calif.

1 MIN READ

Romance is not dead. At least not in and around this beguiling beachfront villa in Malibu, Calif., the renowned playground of the rich and famous. The architecture is inspired, but it’s the impeccable attention to detail that truly makes it special. Features such as rusticated wood ceiling beams, natural stone walls, filigreed iron railings, and climbing bougainvillea give the home a timeless presence. The arched colonnades and portals that appear at every turn form intimate frames for those details. As a result, every room, courtyard, and balcony becomes a point of discovery.

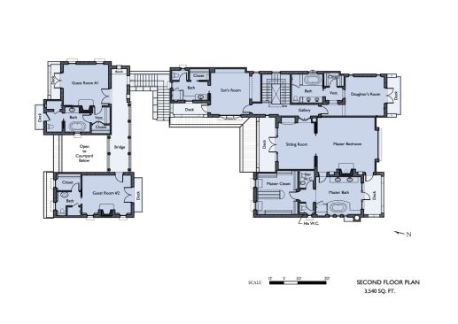
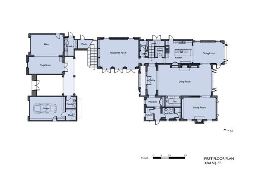
In truth, this isn’t so much a house as a resort. Spanning 7,400 square feet, the property includes a main residence facing the beach (with a master suite, two kids’ bedrooms, living room, dining area, and rec room) plus a gym, pool, spa, yoga studio, and dual guest suites in two additional detached structures. Sited closest to the street, these buildings form a welcoming portal and dramatic entry sequence to the main house. At the same time, they create privacy for an intimate center courtyard.

Project Details:

Award: Grand for best custom home 5,000 to 7,000 square feet

Builder: Albino Construction, Culver City, Calif.

Architect: Landry Design Group, Los Angeles

Interior designer: Joan Behnke & Associates, Los Angeles

Challenge: Create a beachfront retreat that can accommodate groups large and small.

Solution: A home that feels like a tiny village—heavy on amenities but intimate in scale.

Learn more about markets featured in this article: Los Angeles, CA.

About the Author

Upcoming Events

  • Happier Homebuyers, Higher Profits: Specifying Fireplaces for Today’s Homes

    Webinar

    Register for Free
  • Sales is a Sport: These Tactics Are the Winning Play

    Webinar

    Register for Free
  • Dispelling Myths and Maximizing Value: Unlock the Potential of Open Web Floor Trusses

    Webinar

    Register for Free
All Events