2010 Gold Nugget Awards: Mirador

Mirador, Durango, Colo.

2 MIN READ

Perched on a hillside with mountains above and a river valley below, from a distance Mirador looks as unassuming and integrated into the Colorado landscape as a Pueblo community. Indeed, its square, earth-colored forms are reminiscent of the homes of some of the earliest Americans.

Up close, the cluster of 23 townhomes resembles a more modern-day walled city, guarding its interior secrets by baring only garage doors and contemporary-looking iron balconies. Its pedestrian entrances are recessed and obscured. Much like traveling into a fortified town, the trip to the interior is a bit of a journey that terminates in a series of courtyards surrounded by living spaces.

The result is a multifamily development that doesn’t feel like a multifamily development because the inward-focused design of the homes makes it difficult for residents to see their attached neighbors. Each home enjoys expansive views of Durango, the Animas Valley, or mountains through windows, balconies, or decks. Within the homes, the interior courtyards are cosseting, cozy retreats with views up to the sky.

Project Details:

Award: Grand for multifamily project up to three stories

Builder/Developer: Durango Development, Durango, Colo.

Architect: Robert Hidey Architects, Irvine, Calif.

Challenge: Create an air of luxury and privacy at five units to the acre.

Solution: Multifamily housing that feels like single-family housing. Every home offers cozy courtyards and dramatic views.

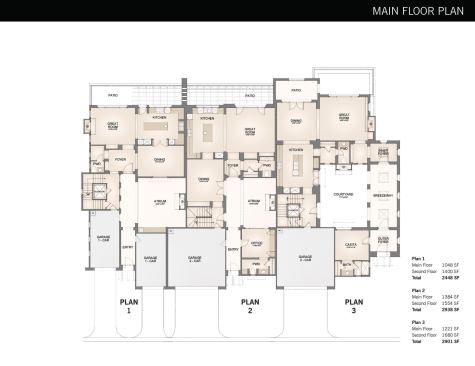
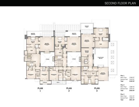
The project offers three floor plans, from 2,448 to 2,901 square feet, with prices in the low $700,000s. While the larger living area in each plan is dubbed a great room, there is also a good-sized room labeled for dining that could function as a living room or as a library, offering respite from the great room tumult. Two of the plans offer either a casita or an office separated from the main living area, near the entrance and atrium or courtyard. Interior stone and wood finishes are contemporary, casual, and understated.

About the Author

Upcoming Events

  • Protecto Wall VP Standard Installation Video

    Webinar

    Register for Free
  • How Right-Sized Plumbing Saves Money, Saves Water, and Protects Wellness

    Webinar

    Register for Free
  • Building Careers from the Ground Up: The IUPAT Floor Covering Apprenticeship and Training Program

    Webinar

    Register for Free
All Events