222 residence, oklahoma

custom / more than 3,500 square feet / grand

1 MIN READ

elliott + associates architects, oklahoma city

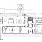
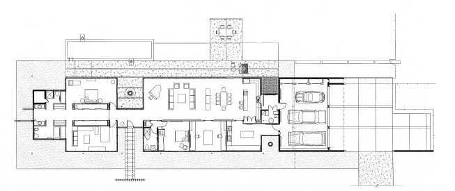
Asked to design a home around a client’s art collection, Elliott + Associates Architects also made the outdoors a dominant and ever-changing part of the installation. The team accomplished it with a long, linear house that seems to push up from the ground. Its mild steel skin was sprayed with salt water during construction so it would corrode in a uniform way, blending with the land’s deep-red soil. “I love the way it reaches out into the landscape. It looks like a home even though it has museum-quality art, and that’s a fine line,” said one judge.

Rand Elliot, FAIA, agrees the challenge was to make the house feel domestic and comfortable but also showcase the art. “Scale was really important—determining the correct proportion of the room to accept the art,” he says. The plan consists of a series of spaces that expand and contract as one moves through, framing the art and the landscape. One of the house’s covered indentations holds a surprise garden made from ground recycled glass. “Critters rearrange it, and then it gets raked and piled up,” he explains.

The judges appreciated that the house was not about bravado, but about texture and connection to the land.

principal in charge: Rand Elliott, FAIA, Elliott + Associates Architects
project architect: Miho Kolliopoulos, AIA, Elliott + Associates Architects
general contractor: Stan Lingo, Lingo Construction Services, Yukon, Okla.
landscape architect / interior designer: Elliott + Associates Architects
project size: 4,308 square feet (including 840-square-foot garage)
site size: 5 acres
construction cost: Withheld
photography: Shimer@Hedrich Blessing

product specs
bathroom plumbing fittings:Waterworks; bathroom plumbing fixtures:Vola A/S; countertops: Forbo Flooring North America (Marmoleum); flooring (ceramic tile):American Olean; kitchen plumbing fittings:Hastings Tile & Bath; paints/stains:The Sherwin-Williams Co.; windows:Kawneer North America

About the Author

Cheryl Weber

Cheryl Weber, LEED AP, is a senior contributing editor to Custom Home and a frequent contributor to Builder. 

Upcoming Events

  • Protecto Wall VP Standard Installation Video

    Webinar

    Register for Free
  • How Right-Sized Plumbing Saves Money, Saves Water, and Protects Wellness

    Webinar

    Register for Free
  • Building Careers from the Ground Up: The IUPAT Floor Covering Apprenticeship and Training Program

    Webinar

    Register for Free
All Events