360 at Southbay

360 at Southbay, Hawthorne, Calif.

1 MIN READ

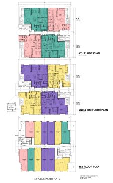
This boutique project includes a modest 28 housing units, but its message has far-reaching implications. As the population of the U.S. grows increasingly diverse and multigenerational, households of all shapes and sizes are emerging, and there’s a desperate need for new housing options that don’t conform to old typologies.

This classy little infill village shows how it’s done. Making efficient use of a land parcel adjacent to a freeway and rail transit line, it adds variety to the area’s ubiquitous supply of single family homes, and does so with the utmost diplomacy. Offering stacked flats, lofts, row townhomes, and courtyard homes in a range of price points and configurations, it’s got something for everyone, including single, couples, empty nesters, and seniors. The community also has a large resort-style club and fitness center, and a central urban green. It’s a little bit urban, a little bit suburban, and irresistible in its appeal.

Details

Award: Residential Project of the Year – Attached Product in an Urban setting; Grand for Infill, Re-development or Rehab Site Plan of 5 Acres or more

Builder/Developer: William Lyon Homes

Architect/Land Planner: JZMK Partners

Learn more about markets featured in this article: Los Angeles, CA.

About the Author

Upcoming Events

  • Protecto Wall VP Standard Installation Video

    Webinar

    Register for Free
  • How Right-Sized Plumbing Saves Money, Saves Water, and Protects Wellness

    Webinar

    Register for Free
  • Building Careers from the Ground Up: The IUPAT Floor Covering Apprenticeship and Training Program

    Webinar

    Register for Free
All Events