Residential

A Field Guide to a Second Life

A derelict barn is reborn as an efficient and accessible modern home.

4 MIN READ

Jane Peers and William Relyea are forward-looking people, so in planning their new house in New York’s Finger Lakes region, they focused on features that would make their lives easier in the years to come. “We wanted to get into a place that wouldn’t require utility bills,” Peers says. “That and handicap accessibility were the two criteria.” But serendipity would intervene as well. Peers’s sister had inherited the family’s farm, along with its dangerously dilapidated barn. “I explained to her that there could be a liability issue,” says Peers, who works in the insurance business, “and suddenly the two projects started to mesh.” Dismantled and shipped north 65 miles to Lima, N.Y., the barn provided the new house with both structural material and a very personal brand of sustainability.

“The barn became our kit of parts,” says architect Rick Hauser, AIA a principal at Perry, N.Y.–based In.Site:Architecture. “The span of the interior space was determined by the length of the existing structural elements,” and the building’s surface area “by how much planking we had.” The barn also served as something of a philosophical guiding light, says Hauser, who, with partner Ali Yapicioglu, AIA, and project architect Dave Matthews, dubbed the house they would design and build “BARNagain.” “It became an opportunity to ground this project in something authentic, almost a farmer’s mindset, an ethic of stewardship, and a multigenerational time horizon.”

“Building simply, that was sort of the macro,” says Hauser, who sought to capture “the attitude of the barn, rather than the style of the barn.” The building’s main wing consists of a one-room-deep, single-story “bar” that lifts its shed roof toward the south for passive solar gain; that heat is then stored in an exposed concrete floor. Insulated to R-20, the slab also delivers hydronic radiant heat from a geothermal heat pump system. An insulated-concrete-form wall and a 4-foot-high earth berm shelter the building from heat loss and noise intrusion on its north side. The remaining, conventionally framed walls are filled with R-37 spray foam insulation; R-49 structural insulating panels cap the timber-framed roof structure.

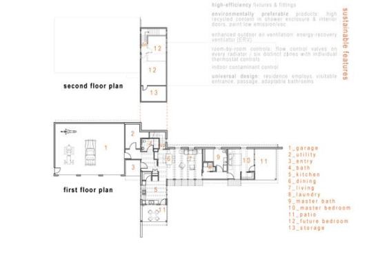
A second, intersecting roof tips its long slope upward to the north, providing mounting surface for solar hot-water panels and creating a sleeping loft for family visitors. (Mast-mounted, tracking photovoltaic panels also offset most of the house’s electrical load.) “Basically, that’s the only thing [the loft] that’s up the stairs,” Peers says, “and we don’t have to go up there if we don’t want to.” Otherwise, she says, the house is fully wheelchair accessible. While neither Peers nor Relyea are in a wheelchair, they didn’t want the accessibility of the house to limit them in the future if their abilities changed. “It’s all zero-entry. The smallest door opening is 36 inches; most of them are 40 inches.”

Sheltered outdoor spaces at the building’s north and east sides serve as seasonal living rooms, Hauser notes, “which allows you to minimize the conditioned space you need in the winter.” A large, utilitarian garage completes the composition, housing vehicles that the owners will use to maintain the 5-acre property, most of which was left undisturbed during construction (disturbed areas were replanted with native species).

The structure wears its weathered oak planking over a rainscreen material that provides ventilation behind each board. “The reason barn wood lasts so long is that it breathes on all sides,” Hauser explains. That combination of contemporary building science and timeless, waste-not practicality guided the project from start to finish. With its LEED Platinum-certified efficiency, the building achieves near-net zero energy use, Hauser notes. “And it doesn’t become obsolete when someone can’t climb stairs. To me, that is sustainability: Planning for the future, not just for the current situation. That aligns with the attitude of a farmer. It’s a deeper sustainability than the kind that comes at the end of a spreadsheet.”


Green Team
Architect, interior designer: In.Site:Architecture, Rick Hauser, AIA, Ali Yapicioglu, AIA
Builder, construction manager: In.Site:Enterprises; W. Relyea Partnership
Client, owner: Jane Peers & Bill Relyea
Mechanical/energy engineer: Halco Renewable, Melissa Kemp
Rater: Airtight Services
HERS Rater: Matt Johnson, Bill Labine
Green consultant: In.Site:Architecture, David Matthews

Materials
Alternative energy systems: Halco; Sum Power; Jitosol
Appliances: GE
Bath fixtures: Price Pfister
Cabinetry and millwork: Furniture Barn
Carpet and flooring: Exposed concrete; Salvaged barn framing
Ceilings: Drywall; Salvaged barn framing
Countertops: Cambia Quartz
Decking: Salvaged barn framing
Framing, ICFs, SIPs: Burm Arxx; Conditioned thermal foam
ERV: Fantech
Insulation: Dow; Thermal Foam SIPs; Arxx
Kitchen fixtures: Kohler; Price Pfister
Paints, stains, and finishes: Sherwin-Williams
Roofing: Real Roofing
Toilets: Glacier Bay
Water heating: Instant Hot Water
Windows and doors: Serious Materials; Therma Tru; Marshfield

About the Author

Bruce D. Snider

Bruce Snider is a former senior contributing editor of  Residential Architect, a frequent contributor to Remodeling. 

Upcoming Events

  • Protecto Wall VP Standard Installation Video

    Webinar

    Register for Free
  • How Right-Sized Plumbing Saves Money, Saves Water, and Protects Wellness

    Webinar

    Register for Free
  • Building Careers from the Ground Up: The IUPAT Floor Covering Apprenticeship and Training Program

    Webinar

    Register for Free
All Events