Firefly Hill is a family retreat in Buchanan, Michigan.About 90 …
Firefly Hill is a family retreat in Buchanan, Michigan.About 90 minutes east of Chicago, it's on the south side of Lake Michigan.
Jeff Goulette
Chicago based architect Jeff Goulette wanted the new house to ha…
Chicago based architect Jeff Goulette wanted the new house to have an old vibe.
Jeff Goulette
The house gets its time-worn appeal from use of materials like s…
The house gets its time-worn appeal from use of materials like stone on the floor and repurposed timber beams. Pieces of archtiectural salvage appear throughout the house.
Jeff Goulette
The 4000-square foot house is divided into smaller spaces, which…
The 4000-square foot house is divided into smaller spaces, which make it big enough to encourage family gatherings, but intimate enough not to feel cavernous.
Jeff Goulette
Many of the repurposed timber beams come from old two-flat apart…
Many of the repurposed timber beams come from old two-flat apartment buildings in Chicago.
Jeff Goulette
The stair landing, which looks out onto the living room, is a gr…
The stair landing, which looks out onto the living room, is a great place for kids to spy on grownups, and for grownups to keep an eye and ear on kids, providing both "an audible and visual connection," says Goulette.
Jeff Goulette
Off the main entry is a cozy den, with a window seat that looks …
Off the main entry is a cozy den, with a window seat that looks out onto the nearby vineyards.
Jeff Goulette
Salvage touches like a tile and tiger oak direplace surround app…
Salvage touches like a tile and tiger oak direplace surround appear throughout the house.
Jeff Goulette
The master bath has a mix ofvintage and modern touches that meld…
The master bath has a mix ofvintage and modern touches that meld well.
Jeff Goulette
Salvage sinks are put to clever use in the second bathroom, enab…
Salvage sinks are put to clever use in the second bathroom, enabling three-at-a-time toothbrushing.
Jeff Goulette
Rustic touches like birch trunk stairway railings give the famil…
Rustic touches like birch trunk stairway railings give the family house a handmade feel.
Jeff Goulette
The screened porch is the perfecct place to enjoy the summer bre…
The screened porch is the perfecct place to enjoy the summer breeze, and there's room for sleepover guests, too.
Jeff Goulette
The screened porch pavilion is a bit grander than the rest of th…
The screened porch pavilion is a bit grander than the rest of the house. It was inspired by the design of carriage houses, which sometimes got added to farmstead properties in times of prosperity.
Jeff Goulette
The ground floor plan shows a series of linked pavilions.
Jeff Goulette
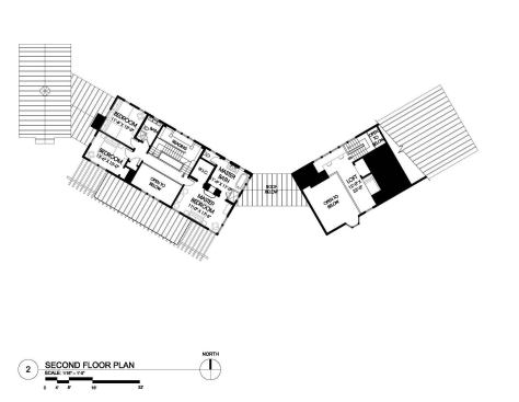
The home's second floor is set at the center of the plan.
Jeff Goulette
The site plan has a north-south orientation, with connecting pav…
The site plan has a north-south orientation, with connecting pavilions angled out. One room deep, they take advantage of prevailing winds, making natural ventilation possible in summertime.
Jeff Goulette
The house is divided into five pavilions, a plan that Goulette d…
The house is divided into five pavilions, a plan that Goulette developed after looking at lots of farmhouses and their series of utility buildings. He was reminded that an aggregate, added-to feel is a quality common to old farmsteads.
A farmhouse-style house has many defining features, from a deep front porch to a metal roof to a barn somewhere on the property. Architect Jeff Goulette, principal at Sullivan Goulette Wilson in Chicago, was familiar with these details and how to borrow from them. So when he designed his retreat in Michigan wine country where friends and family could gather, he wanted the house to feel like it had been around for a while.
After driving around New England looking at farmhouses, Goulette and his wife got a feel for the details. The homes they liked best were a loose collection of utility buildings—barns, chicken coops, and sheds—that tell the story of a house added to over time.
To give aggregate character to the newly built house, Goulette broke up the massing into pavilions. At one end is a screened porch inspired by a carriage house. With a cupola and an arched window, it’s more ornate than the rest of the exterior. It’s the type of addition that Goulette noticed on farms as they grew bigger and more prosperous.
The other end is shedlike, with a full-height 10:12 pitched roof that slopes gradually to match the hillside. The outline makes the building look like it’s rambling down the hill. A nod to a chicken coop or storage shed, it serves a modern-day utility: the garage.
In between is the main part of the house, which looks like a large-scale barn. But inside, the house is broken up into adjoining rooms that make the home feel both spacious and intimate. The living room has a main area, plus an L-shaped nook, a window seat, and a game table tucked into a corner. The stair landing, where nieces and nephews like to read and spy on the grown-ups, overlooks the living room with a spindled railing.
Stone floors lend a time-worn patina to the home. Goulette and his wife are salvage hounds and had been collecting pieces long before the house broke ground. “Stuff that’s been around for a while and doesn’t look all new and perfect” is how Goulette describes the appeal of croquet balls used on newel posts, an oak and tile fireplace surround, and Douglas fir timber beams from an 1890 mattress factory in Ontario. Salvage yards are great places to find such objects.
Goulette credits builder Dan Jacob ’s skills and willingness to experiment with a broad palette of materials. Likewise, Jacob’s son “was genius about framing up arches and barrel vaults,” says Goulette. “The two of them were always trying to find an economical way to achieve what I was trying to do.”
An old-house feeling in a newly built one translates to a quality that’s as intangible as it is cherished: a place that feels comfortable and inviting. “It’s a very happy thing to have people want to come to your house,” Goulette says.
Learn more about markets featured in this article: Chicago, IL.
Amy Albert is editor of Custom Home and a senior editor at Builder. She covers all aspects of design. Previously, she
was kitchen design editor at Bon Appetit;
before that, she was senior editor at Fine
Cooking, where she shot, edited, and wrote stories on kitchen design. Amy
studied art history with an emphasis on architecture and urban design at the
University of Pennsylvania. She lives in Los Angeles. Write her at aalbert@hanleywood.com, follow her on Twitter @CustomHomeMag and @amyatbuilder, or join her on Custom Home's Facebook page.