"In this particular beach town and neighborhood, porches ar…
"In this particular beach town and neighborhood, porches are a huge design element,” says Bubnowski. Entrance steps are 12 feet wide, and it's the favorite spot for portraits taken during family gatherings. The original porch was 13 feet deep, and the scale has been maintained.
Sam Oberter
The pergola on the home's south elevation is made of cedar, and …
The pergola on the home's south elevation is made of cedar, and wisteria has been planted.
Richard Bubnowski
South Elevation
Richard Bubnowski
Copper gutters are a detail that’s common to the area—as is …
Copper gutters are a detail that’s common to the area—as is standing seam copper roofing—so it was logical to install half-round gutters with circle-type hangers. With the salt air, the roof and gutters will turn green eventually, but it will take decades.
Richard Bubnowski
At the front entryway, Tuscan columns are ganged in threes.
Richard Bubnowski
Around the curve, the transition is made to single columns.
Richard Bubnowski
There's a beadboard soffit in the overhangs, along with a woven …
There's a beadboard soffit in the overhangs, along with a woven corner.
Sam Oberter
The hardy, tongue-and-groove porch flooring is made of ipe. The …
The hardy, tongue-and-groove porch flooring is made of ipe. The floor is slightly sloped (¼ inch per foot) so rainwater will drain off.
Sam Oberter
Everybody's favorite space in this house is the sleeping porch. …
Everybody's favorite space in this house is the sleeping porch. The porch flooring and ceiling are mahogany; the bed hangs from in between paired beams. There's a solid block in between the beams and a vertical bolt through the block.
Richard Bubnowski
Inspiration came from the client, who had seen pictures of an In…
Inspiration came from the client, who had seen pictures of an Indonesian hanging bed. The four structural pegs are capped in ebony, an Arts & Crafts-inspired detail.
Sam Oberter
Looking east, the kitchen entry is off the main gallery space. T…
Looking east, the kitchen entry is off the main gallery space. The atrium goes all the way up to the third floor.
Rich Bubnowski
…
Shot before the rails went in, this shot shows that client didn’t want a grand, curved stair. Instead, the stair is tucked off to the side. It's 4 feet wide, and the flooring and treads are white oak. The walls are painted in a faux finish meant to resemble limestone, and the back stair was done in a similar fashion.
Sam Oberter
At the top of the stairs is a baby grand piano, a program requir…
At the top of the stairs is a baby grand piano, a program requirement that was "sprung on me at the last minute," says Bubnowski. “I was 99 percent sure the piano would fit around the stair, but I still lay awake worrying."
Richard Bubnowski
At the home's north elevation is a garage, set back and required…
At the home's north elevation is a garage, set back and required by zoning ordinance. Behind it is the outdoor shower.
Richard Bubnowski
Transverse Section
Richard Bubnowski
The curved porch is to the east of the north entrance. At the ba…
The curved porch is to the east of the north entrance. At the balcony in the third floor is a bank of three windows; that's the master bath. Above that is another walkout balcony. There are several porches and balconies on this house, a doff of the cap to the seafaring tradition of widows walks. They're also private spaces.
Richard Bubnowski
Longitudinal Section looks from east to west. An atrium runs tho…
Longitudinal Section looks from east to west. An atrium runs though the center of house. Far left, on the second floor, is a small passage from master bedroom to the sleeping porch.
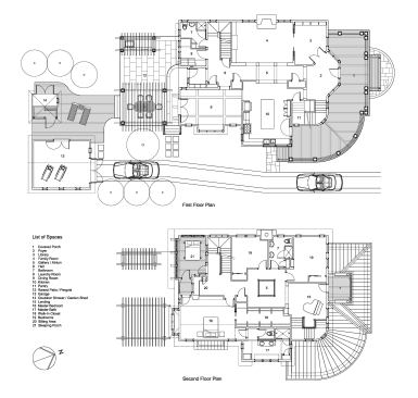
Floor Plan, Shingle Style Beach House, Spring Lake, N.J. Archite…
Floor Plan, Shingle Style Beach House, Spring Lake, N.J. Architect: Richard Bubnowski Design, Point Pleasant Beach, N.J. General Contractor: Falcon Industries, Normany Beach, N.J. Structural Engineer: KSI Professional Engineers, Farmingdale, N.J. Site Engineer: RC Associates, Manasquan, N.J.
This Shingle-style home was constructed pre-Hurricane Sandy and it survived, thanks toprovisions such as hurricane ties, hold-downs, and shear wall construction. The place was built to withstand winds up to 115 mph. Even though the site is a good block or so from the ocean, grade elevation is up around 30 feet above sea level, and the house has a full basement. Wall construction is 2 x 6 with solid spray foam insulation, resulting in a good R-value.
On the site was anexisting house, but renovating it was cost prohibitive. Architect Rich Bubnowski took many cues from the original and surrounding houses in the neighborhood, designing a 13-foot-deep wrap porch with 12-foot-wide entrance steps—the ideal place for the family photos that get taken during reunions at this family gathering place.
One design move that Bubnowski wasn’t allowed to make was the cladding of the house. “My choice would have been cedar,” says the architect, who admits that he raised his eyebrows when he learned he wouldn’t be using actual shingles for this Shingle-style house. The owners, however, wanted a maintenance-free exterior for this second home. Using a nontraditional material on a historic-looking house involved extra work to get the window detailing and flashing right, but result was successful. Sure enough, it’s hard to tell by looking that this house is clad in engineered composite siding.
Shingle-Style Beach House,Spring Lake, N.J.; Architect:Richard Bubnowski Design, Point Pleasant Beach, N.J.; General Contractor:Falcon Industries, Normandy Beach, N.J.; Structural Engineer:KSI Professional Engineers, Farmingdale, N.J.; Site Engineer:RC Associates, Manasquan, N.J.
Amy Albert is editor of Custom Home and a senior editor at Builder. She covers all aspects of design. Previously, she
was kitchen design editor at Bon Appetit;
before that, she was senior editor at Fine
Cooking, where she shot, edited, and wrote stories on kitchen design. Amy
studied art history with an emphasis on architecture and urban design at the
University of Pennsylvania. She lives in Los Angeles. Write her at aalbert@hanleywood.com, follow her on Twitter @CustomHomeMag and @amyatbuilder, or join her on Custom Home's Facebook page.