2007 Builder’s Choice Winner: Latitudes South At Vantis

2007 Builder's Choice Award Winner - Grand

1 MIN READ

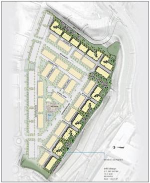
In conceiving the most poetic use of this bluff-top location overlooking downtown Aliso Viejo, William Hezmalhalch Architects considered not just how to frame the site’s killer views for those who would live there, but also how the residences along the perimeter would be seen from below.

The resulting dialogue between urban valley and suburban hilltop is inspired. A series of L-shaped courtyard homes softens the bluff’s edge, using staggered rooftops and massing to create an interesting skyline. “The site told us to put the smaller mass of each ‘L’ along the bluff edge to preserve this prominent view of the city,” says principal Jeff Chelwick.

With their parapet walls and stone façades, the courtyard homes share a common language with the commercial structures in the valley, and yet this enclave has the intimacy of a small village, thanks, in part, to gardens and green spaces carved into the lap of each building plan. Designed by Urban Arena, each of the gardens appeals to one of the senses. The “taste” garden, for example, includes a grill station and edible plants, while the “smell” garden is an olfactory bonanza.

Complementing two other housing types at Vantis—live/work units and urban town-homes—the courtyard homes of Latitudes South range from one to three stories and include a diversity of floor plan options. All units enjoy direct-access garages, private deck or patio space, and garden or vista views.

See all 2007 Builder’s Choice Award Winners

Category: Townhouse unit, less than 2,000 square feet;

Entrant/Architect: William Hezmalhalch Architects, Santa Ana, Calif.;

Builder/Developer: Shea Homes, Aliso Viejo, Calif.;

Land planner: Canyon Consulting, Newport Beach, Calif.;

Interior designer: Saddleback Interiors, Corona del Mar, Calif.;

Landscape architect: Urban Arena, Costa Mesa, Calif.

Learn more about markets featured in this article: Los Angeles, CA.

About the Author

Upcoming Events

  • Protecto Wall VP Standard Installation Video

    Webinar

    Register for Free
  • How Right-Sized Plumbing Saves Money, Saves Water, and Protects Wellness

    Webinar

    Register for Free
  • Building Careers from the Ground Up: The IUPAT Floor Covering Apprenticeship and Training Program

    Webinar

    Register for Free
All Events