Cedar Street Residence, Tempe, Ariz.

Renovation

1 MIN READ

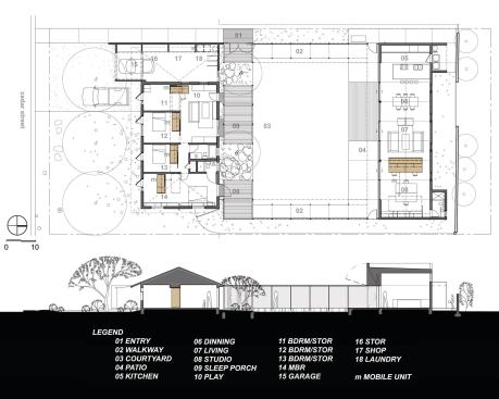
This addition to a 1950s ranch house encloses more space outdoors than indoors. Devoting the existing structure to a garage, four bedrooms, and a playroom, architects and owners Maria Salenger and Matthew Salenger designed a separate kitchen/living/dining structure that also is the studio for their three-person firm. Joined by covered walkways and polycarbonate-clad garden walls, the two buildings frame a green courtyard that serves as a flexible outdoor living room. The configuration is novel in this suburban milieu, but the Salengers’ execution and detailing—make it eminently practical.

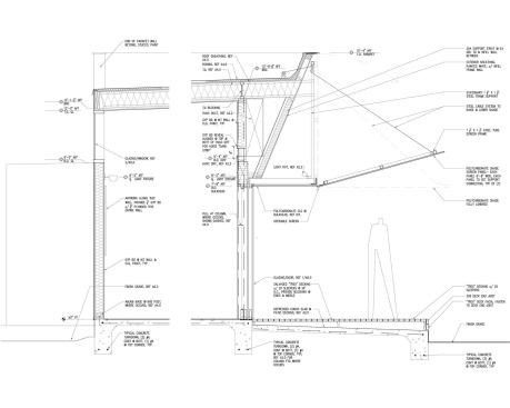
Light rusted steel columns support polycarbonate roofs for protection from the Arizona sun, while an operable polycarbonate awning controls south light at the kitchen/office structure. Reflective surfaces make the courtyard seem even larger than it is. Interiors are bone simple, divided largely with movable millwork “boxes” that easily are shifted to reconfigure spaces. “Sometimes we need just two


Entrant/Architect: colab studio, Tempe, Ariz.; General contractor: Build Inc., Phoenix; Living space: 2,222 square feet; Site: 0.25 acre; Construction cost: Withheld; Photographer: Bill Timmerman.


Product details

Bathroom and kitchen cabinets: IKEA, www.ikea.com; Bathroom fittings and fixtures: IKEA, www.ikea.com, Kohler, www.kohler.com; Cooktop: Jenn-Air, www.jennair.com; Dishwasher: Bosch, www.bosch.com; Doors, skylights, and windows: Arcadia, www.arcadiainc.com; Flooring (ceramic tile, stone, or concrete): Solomon, www.solomoncolors.com; Garbage disposer: Waste King, www.waste-king.com; HVAC equipment: Trane, www.trane.com; Kitchen fittings: Grohe, www.grohe.com; Kitchen fixtures: Franke, www.franke.com;Lighting fixtures: Bega, www.bega-us.com; Oven: Kenmore, www.kenmore.com; Paints/stains/wall finishes: Sherwin-Williams, www.sherwin-williams.com; Refrigerator: Whirlpool, www.whirlpool.com; Roofing: Sprayfoam Southwest, www.roofingsouthwest.com; Translucent wall/roof panels: PALRAM, www.palram.com

Learn more about markets featured in this article: Phoenix, AZ.

About the Author

Bruce D. Snider

Bruce Snider is a former senior contributing editor of  Residential Architect, a frequent contributor to Remodeling. 

Upcoming Events

  • Protecto Wall VP Standard Installation Video

    Webinar

    Register for Free
  • How Right-Sized Plumbing Saves Money, Saves Water, and Protects Wellness

    Webinar

    Register for Free
  • Building Careers from the Ground Up: The IUPAT Floor Covering Apprenticeship and Training Program

    Webinar

    Register for Free
All Events