Chevy Chase, Md., Residence

Custom Home 3,000 to 5,000 Square Feet / Merit Award

1 MIN READ

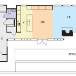
Building a Modernist house in a long-established traditional neighborhood is not the surest way to endear oneself to the neighbors. But this new infill home tackles that hazardous assignment with the poise of a seasoned diplomat. Architect Robert Gurney gave the front half of the building enough traditional cues—white clapboard siding, porch columns, vertically oriented windows—to keep the peace without resorting to historical replication. As it extends toward the rear of its narrow lot, however, this neo-farmhouse breaks into an abstract composition. In plan, the L-shaped structure interlocks with a slender stone patio and lap pool, visually extending the first-floor living areas into the yard. “They’ve defended a space, and everything kind of looks into it,” noted one judge, “and that’s just a good move.”

Inside, the theme is pure, straight-line Modernism with all that implies: open spaces; crisp, minimalist details; and lots of daylight. But what impressed the judges most was how well this design solves the essential problem of its program. “It does what a lot of suburban houses should do, which is present a face to the street and then turn and create a private oasis in the back.”

Project Credits
Entrant/Architect: Robert M. Gurney, FAIA, Architect, Alexandria, Va.
Builder: M.T. Puskar Construction, Alexandria
Living space: 3,400 square feet
Site: .25 acre
Construction cost: Withheld
Photographer: Maxwell MacKenzie

Resources: Bathroom plumbing fittings: Kohler; Bathroom plumbing fixtures: Grohe, Hansgrohe, and Vola; Bathroom/kitchen cabinets: Burger’s Custom Cabinetry; Brick products: Dillon; Dishwasher: Miele; Exterior siding: Galvalume; Fireplace: Heatilator; Freezer: Sub-Zero; Garbage disposer: Franke; Hardware: FSB; HVAC equipment: Carrier; Kitchen plumbing fittings/fixtures: Franke; Lighting fixtures: Artemide, Lightolier, Stonco, and Task; Oven: Thermador; Paints: Benjamin Moore; Patio doors/windows: Weather Shield; Range: Thermador; Refrigerator: Sub-Zero; Roofing: Genflex3; Structural lumber: Trus Joist.

About the Author

Bruce D. Snider

Bruce Snider is a former senior contributing editor of  Residential Architect, a frequent contributor to Remodeling. 

Upcoming Events

  • Protecto Wall VP Standard Installation Video

    Webinar

    Register for Free
  • How Right-Sized Plumbing Saves Money, Saves Water, and Protects Wellness

    Webinar

    Register for Free
  • Building Careers from the Ground Up: The IUPAT Floor Covering Apprenticeship and Training Program

    Webinar

    Register for Free
All Events