MFEConceptCommunity 2016

MFEConceptCommunity 2016

Chilmark, Mass., Residence

Custom Home Less Than 3,000 Square Feet / Merit Award

1 MIN READ

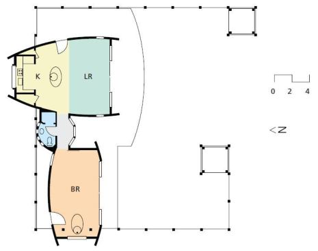
Subtle allusions to the sea permeate this Martha’s Vineyard, Mass., guest house. Inspired by the home’s island location and drawing on his boat-building background, architect Keith Moskow designed a “gem of a maritime reference,” according to the jury.

“I know how curvilinear things go together,” explains Moskow, referring to the bedroom ceiling that swoops over the space like an inverted hull of a boat. Topside, the roof extends into gently curved overhangs that work with the home’s passive solar orientation. Lead-coated copper fish-scale roof shingles playfully allude to the home’s maritime theme.

Moskow’s years as a boat builder also served well for fitting a full contingent of amenities into the 800-square-foot plan. A small full bath is tucked into a “knuckle” between bedroom and gathering room. The tiny but functional kitchen occupies the prow of the multipurpose gathering room, and it is detailed for galley-like efficiency. For example, the discreet dish-drying rack (concealed behind an ordinary cabinet door) is placed to drain onto stainless counters that slope toward the sink. Moskow stowed a laundry room and pantry in closets flanking either side of the kitchen counter.

Project Credits
Entrant/Architect: Moskow Architects, Boston
Builder: McGrath Carpentry Services, Milton, Mass.
Environmental engineer: Mark Kelley, Harvard, Mass.
Project size: 800 square feet
Site: 7 acres
Construction cost: Withheld
Photographer: Greg Premru

Resources: Bathroom plumbing fittings: Axor; Bathroom plumbing fixtures: Kohler and Toto; Bathroom/kitchen cabinets: McGrath; Entry doors: Eagle 519; Fireplace: Rais; Hardware: Hafele; Hot water system: Rinnai; HVAC equipment: Fantech; Interior doors: Dana Robes; Kitchen plumbing fittings: KWC; Kitchen plumbing fixtures: Service Plus; Lighting fixtures: Artemide 527, Bega, Flos, Lightolier, and Petro; Paint: Benjamin Moore and Cabot; Patio doors/windows: Eagle; Refrigerator: Summit.

About the Author

Shelley D. Hutchins

Shelley D. Hutchins, LEED AP, writes about residential construction and design, sustainable building and living, and travel and health-care issues.

Upcoming Events

  • Protecto Wall VP Standard Installation Video

    Webinar

    Register for Free
  • How Right-Sized Plumbing Saves Money, Saves Water, and Protects Wellness

    Webinar

    Register for Free
  • Building Careers from the Ground Up: The IUPAT Floor Covering Apprenticeship and Training Program

    Webinar

    Register for Free
All Events