Cooperstein House, Truro, Mass.

Custom Home / 3,000 to 5,000 Square Feet

2 MIN READ

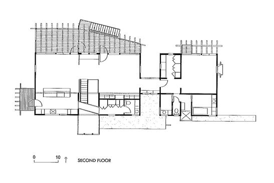
Views, wind patterns, and sunlight drove the design of this upside-down weekend house on Cape Cod. Architect Jim Estes and his clients opted to reuse the footprint of an existing home, making its split floor plan work to their advantage. “It allows the master bedroom and the guest bedrooms to be autonomous,” Estes says.

He placed the home’s most frequently used rooms on the upper level to capture ocean and meadow views. A shed roof protects the north side of the house from harsh winds, while opening up the southern and western ends for solar gain. Thermally efficient Kalwall panels on the northern exposure let in light without compromising privacy. And a two-story stairwell brings even more of the sun’s rays into the heart of the building. “The house gets great light,” one juror noted.

For all of the floor plan’s openness, Estes also made sure to include some more-enclosed nooks and crannies, such as a sitting area at the top of the stairs. “It was about creating spaces here and there where people can get away,” he explains.


Entrant/Architect: Estes/Twombly Architects, Newport, R.I.; Builder: Cape Associates, North Eastham, Mass.; Landscape architect: Keith LeBlanc Landscape Architecture, Boston; Living space: 3,427 square feet; Site: 0.9 acre; Construction cost: Withheld; Photographer: Warren Jagger Photography.


Product details

Bathroom fittings: Hansgrohe, www.hansgrohe-usa.com; Bathroom fixtures: Kohler, www.kohler.com, Toto USA, www.totousa.com; Cooktop and oven: Wolf, www.wolfappliance.com; Dishwasher: ASKO, www.askousa.com; Flooring: Marmoleum, www.forboflooringna.com; Hardware: Valli & Valli, www.vallivalli-us.com; HVAC equipment: Acadia; Insulation: Icynene, www.icynene.com; Kitchen fittings: Grohe, www.grohe.com; Kitchen fixtures: FrankeUSA, www.frankeusa.com; Lighting fixtures: Tech Lighting, www.techlighting.com, Stonco, www.crescent-stonco.com, Lightolier, www.lightolier.com; Paints/stains/wall finishes: Benjamin Moore, www.benjaminmoore.com; Refrigerator: Sub-Zero, www.subzero.com; Roofing: Englert, www.englertinc.com; Windows: Eagle Window, www.eaglewindow

About the Author

Upcoming Events

  • Build-to-Rent Conference

    JW Marriott Phoenix Desert Ridge

    Register Now
  • Builder 100

    Dana Point, CA

    Register Now
  • Protecto Wall VP Standard Installation Video

    Webinar

    Register for Free
All Events