Country Club Kitchen, Edina, Minn.

Merit: Kitchen Renovation / Rehkamp Larson Architects, Minneapolis

1 MIN READ

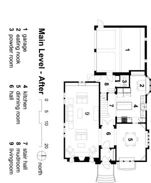
“The kitchen improves the whole design of the house,” enthused our jurors about this renovation project, adding that the new space “is where you want to end up and leave from every single day.” Architect Jean Rehkamp says that her clients requested a complete redo of their house, but they wanted it done without adding a single square foot of space. Rehkamp looked to the existing house for clues on how to generate a contemporary open floor plan without losing the home’s character. “So often in remodeling it’s crucial to learn from what’s there and make your design be sensitive to that,” she says.

Not surprisingly, the kitchen was the focus of changes made to the first floor. By eliminating one wall, the design team opened up this central hub to other living spaces. That one move also transformed a dark hallway into a light-filled circulation path, while the resulting archway frames the graceful existing stair. Plaster details that adorn the corners of the archway, brackets that support the oven hood, and gothic-inspired panel insets that bookend the kitchen island all originated from detailing found within the house. That new island also vastly improves flow within the L-shaped space and sets up various activity centers. “We literally worked with inches,” Rehkamp says. “We took 18 inches from the dining room and gave it to the kitchen, which was all we needed to make that island work.”

About the Author

Shelley D. Hutchins

Shelley D. Hutchins, LEED AP, writes about residential construction and design, sustainable building and living, and travel and health-care issues.

Upcoming Events

  • Build-to-Rent Conference

    JW Marriott Phoenix Desert Ridge

    Register Now
  • Builder 100

    Dana Point, CA

    Register Now
  • Protecto Wall VP Standard Installation Video

    Webinar

    Register for Free
All Events