Crook Cup Bow Twist Kitchen, Nicasio, Calif.

Merit: Custom Kitchen in a house less than 3,000 square feet / Schwartz and Architecture

1 MIN READ

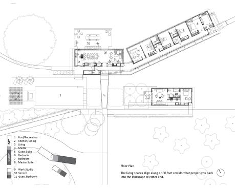
Designing a kitchen for homeowners who love to cook begs a big question: What to do when you have people over and preparations are still in progress? The jury was impressed by this room’s ability to answer that charge and be an inviting open kitchen with a clearly protected cook’s space—a kitchen that doesn’t have to be all cleaned up in order to have people over. In fact, it’s the interplay between what’s functional and what’s decorative and the editing of what you see and what you don’t that makes this kitchen so alluring. –A.A.

About the Author

Amy Albert

Amy Albert is editor of Custom Home and a senior editor at Builder. She covers all aspects of design. Previously, she was kitchen design editor at Bon Appetit; before that, she was senior editor at Fine Cooking, where she shot, edited, and wrote stories on kitchen design. Amy studied art history with an emphasis on architecture and urban design at the University of Pennsylvania. She lives in Los Angeles. Write her at aalbert@hanleywood.com, follow her on Twitter @CustomHomeMag and @amyatbuilder, or join her on Custom Home's Facebook page. 

Upcoming Events

  • Build-to-Rent Conference

    JW Marriott Phoenix Desert Ridge

    Register Now
  • Builder 100

    Dana Point, CA

    Register Now
  • Protecto Wall VP Standard Installation Video

    Webinar

    Register for Free
All Events