Residential

Custom Home of the Year: Lincoln Park Residence, Chicago

Custom Home of the Year

3 MIN READ
This year’s Custom Home of the Year was nearly a century and a half in the making. Once the barn and storefront of an in-town dairy, the original structures were built in the 1870s and early 1900s. When builders Jake Goldberg and Jeff Berry first toured the complex, “the masonry was in such disrepair, it was actually dangerous,” Berry says. But its generous size, historic character, and prime location made the property a compelling subject for reuse as an urban residence that, said our judges, “lacks nothing.”


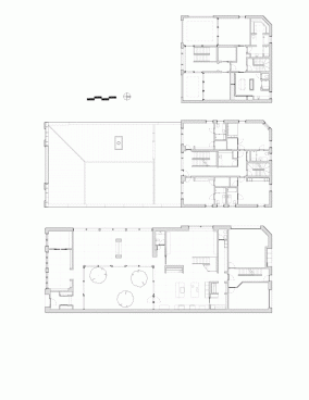
“It’s a ‘contributing building’ in a landmark district,” says project architect Dan Roush, “so everything you see from the street had to remain as-is.” Roush and firm principal John Vinci enjoyed greater latitude inside the perimeter walls. At the ground level they created an open courtyard that provides private outdoor space and a source of daylight for the cooking, living, and entertaining functions that surround it. The second level, originally a stable (the horses walked up a ramp), houses children’s bedrooms and opens onto a large roof deck. The master suite, with its two private outdoor terraces, fills the third-floor hayloft.

On Site

The tight urban site is bordered by alleys, the street, and an apartment building. To set the 30-foot tall triple-stacked window and door units, a small picker crane parked in the alley. A lift system was staged, with two 20-foot scaffolding towers, a steel beam span, and an electric winch.


The architects limited the interior materials to what Roush calls “your minimal, art-collector palette. We have a stone, a wood, and a paint color; that’s about it.” Terrazzo covers the ground-level floors; the courtyard surfaces and the living room’s stacked-stone fireplace are Indian black granite. The sapele of the upper-level floors matches the custom windows and doors. The latter—including lift-slide units that Roush describes as “pretty near the buildable limit for wood doors”—exemplify the builders’ challenge on this project. “You have a 40-foot run in the courtyard,” Berry says, “with 20-foot runs on the returns, and very little tolerance from the rough openings to the finish surfaces.” All in a building whose original condition he characterizes as “crumbling.”

Our jury deemed the outcome well worth the effort, lauding not only the “cool concept,” “great design,” and “strong interiors,” but also the owners’ vision of a sophisticated family home in the heart of the city. “It’s urban, and it uses an existing structure,” said one judge. “Someone is living here and connected to the community. It sends a powerful message.”


Project Credits:

Entrant/Builder: Goldberg General Contracting, Chicago
Architect: Vinci | Hamp Architects, Chicago
Landscape Architect: McKay Landscape Architects, Chicago
Interior Designer: Stephanie Wohlner Design, Highland Park, Ill.
Living Space: 10,000 square feet
Site: 0.14 acre
Construction Cost: $500 per square foot
Photographer:Eric Hausman Photography

Resources:

Bathroom cabinets: Duravit, Robern
Bathroom fittings: Grohe, Hansgrohe
Bathroom fixtures: Duravit, Toto
Cooktop and oven: Wolf
Countertops: DuPontn
Dishwasher: Miele
Doors and windows: Grabill
Garage doors: Sawmill Creek
Garbage disposer: InSinkErator
Hardware: FSB, Hafele
HVAC equipment: Carrier
Insulation: Dow
Kitchen cabinets: Bulthaup
Kitchen fittings: KWC
Kitchen fixtures: Franke
Lighting fixtures: Charles Loomis, David Weeks
Paints/stains/wall finishes:
Benjamin Moore
Refrigerator:
Sub-Zero
Roofing:
GAF, Rheinzink


LIsten to the Jury deliberate and describe why this project was elevated to Custom Home of the Year:

See all of the 2013 Design Award winners.

About the Author

Bruce D. Snider

Bruce Snider is a former senior contributing editor of  Residential Architect, a frequent contributor to Remodeling. 

Upcoming Events

  • Happier Homebuyers, Higher Profits: Specifying Fireplaces for Today’s Homes

    Webinar

    Register for Free
  • Sales is a Sport: These Tactics Are the Winning Play

    Webinar

    Register for Free
  • Dispelling Myths and Maximizing Value: Unlock the Potential of Open Web Floor Trusses

    Webinar

    Register for Free
All Events