Elm, Hidden Creek, Neb.

single-family production / detached / merit

1 MIN READ

randy brown architects, omaha, neb.

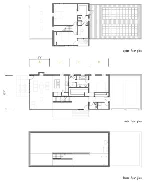
Randy Brown, FAIA, LEED AP, is opposed to the typical suburban production home, so he designed the Elm model of the Hidden Creek 12-unit project to fly in the face of convention. One judge liked that it is a “house form that has some potential to be modified.”

Because the development is adjacent to a nature preserve, Brown sited the house on a small lot and planted it with native grasses to promote natural drainage. “The high density and limited yard space work, because homeowners can easily walk the trails and use the public park,” he says.

Brown and his team arranged the modular house to animate the street and built it with an energy-efficient shell, geothermal and radiant heating, and recycled lumber, among other sustainable features. A “DIY” sod roof made with containers from The Home Depot provide additional green space. The firm kept costs in check with simple interior elements that require no finishing, such as exposed framing and polished concrete floors on the basement level.

“This is what architecture’s about: trying to do something new,” said a judge.


Project Credits
principal in charge / project architect / general contractor: Randy Brown, FAIA, LEED AP, Randy Brown Architects, www.randybrownarchitects.com
project assistants: Zach Hilleson and Brandon Schumacher, Randy Brown Architects
project size: 2,500 square feet
site size: 0.2 acre
construction cost: $84 per square foot
sales price: $310,000 per unit
units in project: 12
photography: Assassi Productions

Product Details
windows: Andersen Corp. www.andersenwindows.com; kitchen cabinets: Ikea www.ikea.com

View the next 2010 rada winner.

About the Author

Upcoming Events

  • Happier Homebuyers, Higher Profits: Specifying Fireplaces for Today’s Homes

    Webinar

    Register for Free
  • Sales is a Sport: These Tactics Are the Winning Play

    Webinar

    Register for Free
  • Dispelling Myths and Maximizing Value: Unlock the Potential of Open Web Floor Trusses

    Webinar

    Register for Free
All Events