Four Pavilions, Washington, D.C. Richard Williams Architects Washington, D.C.
The judges called this preservation of a 1975 Hugh Newell Jacobsen, FAIA, house “the restoration of an icon.” Architects have long revered the 1,990-square-foot residence in Washington, D.C., for its ingenious siting and the simple elegance of its four gabled forms. “Before I even knew I wanted to be an architect, I loved this house,” says Richard Williams, FAIA, whom the current owners hired to preserve the aging building.
1
of 17
Nikolas Koenig
2013 RADA / Restoration/Preservation / Grand Award: Four Pavilio…
2013 RADA / Restoration/Preservation / Grand Award: Four Pavilions, Washington, D.C. / Richard Williams Architects
Nikolas Koenig
2013 RADA / Restoration/Preservation / Grand Award: Four Pavilio…
2013 RADA / Restoration/Preservation / Grand Award: Four Pavilions, Washington, D.C. / Richard Williams Architects
Nikolas Koenig
2013 RADA / Restoration/Preservation / Grand Award: Four Pavilio…
2013 RADA / Restoration/Preservation / Grand Award: Four Pavilions, Washington, D.C. / Richard Williams Architects
Nikolas Koenig
2013 RADA / Restoration/Preservation / Grand Award: Four Pavilio…
2013 RADA / Restoration/Preservation / Grand Award: Four Pavilions, Washington, D.C. / Richard Williams Architects
Nikolas Koenig
2013 RADA / Restoration/Preservation / Grand Award: Four Pavilio…
2013 RADA / Restoration/Preservation / Grand Award: Four Pavilions, Washington, D.C. / Richard Williams Architects
Nikolas Koenig
2013 RADA / Restoration/Preservation / Grand Award: Four Pavilio…
2013 RADA / Restoration/Preservation / Grand Award: Four Pavilions, Washington, D.C. / Richard Williams Architects
Nikolas Koenig
2013 RADA / Restoration/Preservation / Grand Award: Four Pavilio…
2013 RADA / Restoration/Preservation / Grand Award: Four Pavilions, Washington, D.C. / Richard Williams Architects
Nikolas Koenig
2013 RADA / Restoration/Preservation / Grand Award: Four Pavilio…
2013 RADA / Restoration/Preservation / Grand Award: Four Pavilions, Washington, D.C. / Richard Williams Architects
Nikolas Koenig
2013 RADA / Restoration/Preservation / Grand Award: Four Pavilio…
2013 RADA / Restoration/Preservation / Grand Award: Four Pavilions, Washington, D.C. / Richard Williams Architects
Nikolas Koenig
2013 RADA / Restoration/Preservation / Grand Award: Four Pavilio…
2013 RADA / Restoration/Preservation / Grand Award: Four Pavilions, Washington, D.C. / Richard Williams Architects
Nikolas Koenig
2013 RADA / Restoration/Preservation / Grand Award: Four Pavilio…
2013 RADA / Restoration/Preservation / Grand Award: Four Pavilions, Washington, D.C. / Richard Williams Architects
Nikolas Koenig
2013 RADA / Restoration/Preservation / Grand Award: Four Pavilio…
2013 RADA / Restoration/Preservation / Grand Award: Four Pavilions, Washington, D.C. / Richard Williams Architects
Nikolas Koenig
2013 RADA / Restoration/Preservation / Grand Award: Four Pavilio…
2013 RADA / Restoration/Preservation / Grand Award: Four Pavilions, Washington, D.C. / Richard Williams Architects
Nikolas Koenig
2013 RADA / Restoration/Preservation / Grand Award: Four Pavilio…
2013 RADA / Restoration/Preservation / Grand Award: Four Pavilions, Washington, D.C. / Richard Williams Architects
Courtesy Richard Williams Architects
2013 RADA / Restoration/Preservation / Grand Award: Four Pavilio…
2013 RADA / Restoration/Preservation / Grand Award: Four Pavilions, Washington, D.C. / Richard Williams Architects
Nikolas Koenig
2013 RADA / Restoration/Preservation / Grand Award: Four Pavilio…
2013 RADA / Restoration/Preservation / Grand Award: Four Pavilions, Washington, D.C. / Richard Williams Architects
Nikolas Koenig
2013 RADA / Restoration/Preservation / Grand Award: Four Pavilio…
2013 RADA / Restoration/Preservation / Grand Award: Four Pavilions, Washington, D.C. / Richard Williams Architects
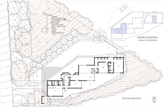
The clients asked Williams and project architect Timothy Abrams, AIA, to honor the spirit of the original and to make improvements where needed. Building science has come a long way since the 1970s, so the project team redid the insulation and flashing, and added a rainscreen. The HVAC and electrical systems received a thorough makeover, and the home’s signature triangular windows were upgraded with new high-efficiency glass. Jacobsen’s staggered floor plan saved the best of the landscape for views, and Williams wasn’t about to tamper with it. But he did want to create more of a relationship between house and site, in line with modern-day preferences. Working with landscape architect Gregg Bleam, Williams and Abrams raised the sloped grade at the master bedroom end of the house using a cast concrete retaining wall. They added a sliding shutter door and a small deck for access to this newly elevated lawn. And Bleam shortened and reconfigured the existing driveway to give more space to the garden.
During the design and construction process, Williams gained even more respect for the original building than before. “This house is the best of what modern architecture can be,” he says.
Principal in charge: Richard Williams, FAIA Project architect: Timothy Abrams, AIA Interior designer: Jim Luigs, Jim Luigs Designs, New York Landscape architect: Gregg Bleam, Gregg Bleam Landscape Architect, Charlottesville, Va. General contractor: Richard Zantzinger, Mauck Zantzinger & Associates, Washington Project size: 1,990 square feet Site size: 0.3 acre Construction cost: Withheld Photographer: Nikolas Koenig