Four Seasons Residence 29, Austin, Texas

Merit / Architectural Interiors

1 MIN READ

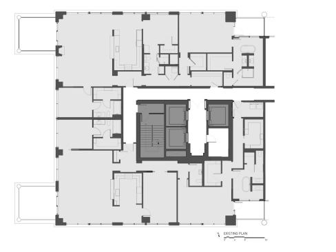
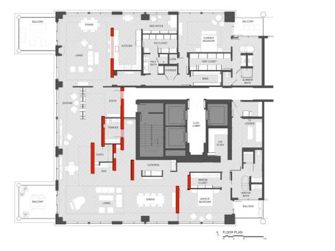
Architect David Webber put quality and consistency at the center of this two-unit condo project. His clients lived on one side, and when the next-door unit came up for sale, they bought it, hiring Webber to design a connecting event space for hosting fundraisers. “They wanted to live mostly on the side they already had and open the other side for public events,” Webber says. After nearly gutting the second unit’s traditional floor plan and inserting new walls to hide the plumbing and mechanical infrastructure, he was left with an odd L-shaped floor plan.

The solution: a series of parallel wood-clad slab walls that create public sub-zones for catering, living/dining, and coat storage, plus a polished lobby that serves both units. “The condo is on the southwest corner of the building, and the walls are running north-south to buffer the late afternoon sun,” Webber says. They’re wrapped in bleached walnut, which has the tonal effect of white oak and highlights the walnut grain. A walnut-clad wall reappears in the couple’s quarters, carrying the concept from one side to the other.

Inspired by the original hand-scraped wood floors and lacquered ceiling sections, Webber covered several perpendicular connecting walls in red tile, leather, white gold, polished brass, and art glass, “to give a splash of material richness,” he says.

A judge commented: “The wood paneling is consistent all the way through. It’s design-driven down to the last detail.”

Getting it Done Despite the existing floor’s uneven surface, the wood walls have a ½-inch reveal between the floor and ceiling. “The reveal was important to show off the wood, and how it occupies and divides the space,” Webber says.

About the Author

Cheryl Weber

Cheryl Weber, LEED AP, is a senior contributing editor to Custom Home and a frequent contributor to Builder. 

Upcoming Events

  • Build-to-Rent Conference

    JW Marriott Phoenix Desert Ridge

    Register Now
  • Builder 100

    Dana Point, CA

    Register Now
  • Protecto Wall VP Standard Installation Video

    Webinar

    Register for Free
All Events