GREENville House, Greenville, N.C.

Custom Home / 3,000 to 5,000 Square Feet

1 MIN READ

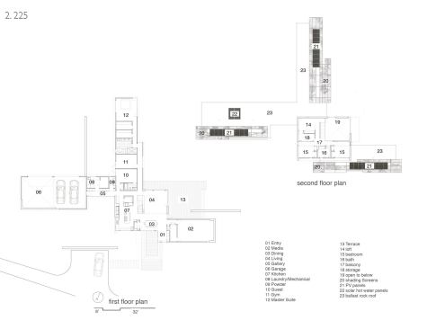
The owners of this new LEED Silver-rated residence did their sustainability homework in advance. “They knew about solar and geothermal from the beginning,” says project designer Katherine Hogan. That head start allowed Hogan and principal designer Vincent Petrarca to weave green features into the fabric of the building, rather than tack them on as options after the fact.

The house’s two-story section places the children’s bedrooms at a peaceful remove from their parents’ but “creates a lot of shade,” Petrarca notes. “So the building stretches away from itself, away from its shadow,” presenting a pinwheel-like shape to the sun. Aluminum rooftop “trays” provide integrated mounting for photovoltaic and solar thermal panels, turning down at the roof’s edge to shade the windows. The house’s low-maintenance shell combines brick-, red cedar-, and zinc-clad forms in an interlocking composition. Our jury cited the integration of energy efficiency and the use of daylight as an energy source and design element.


Entrant/Architect: Tonic Design, Raleigh, N.C.; Builder: Tonic Construction, Raleigh; Living space: 4,042 square feet; Site: 5.5 acres; Construction cost: $225 per square foot; Photographer: Todd Lanning.


Product details

Bathroom and kitchen cabinets: Xylem, www.xylemonline.com; Bathroom and kitchen fittings: Grohe, www.grohe.com; Bathroom and kitchen fixtures: Kohler, www.kohler.com; Cooktop and oven: Viking, www.vikingrange.com; Countertops: Caesarstone, www.ceasarstoneus.com; Dishwasher: Miele, www.mieleusa.com; Exterior siding: VM Zinc, www.vmzinc-us.com; Flooring: Select Forest Products, www.selectforest.com; Garage doors: Overhead Door, www.overheaddoor.com; Garbage disposer: InSinkErator, www.insinkerator.com; Hardware: Omnia, www.omniaindustries.com; Lighting fixtures: Artemide, www.artemide.us; Paints/stains/wall finishes: Sherwin-Williams, www.sherwin-williams.com; Refrigerator: Sub-Zero, www.subzero.com; Skylights/roof windows: Velux, www.velux.com

Learn more about markets featured in this article: Raleigh, NC.

About the Author

Bruce D. Snider

Bruce Snider is a former senior contributing editor of  Residential Architect, a frequent contributor to Remodeling. 

Upcoming Events

  • Protecto Wall VP Standard Installation Video

    Webinar

    Register for Free
  • How Right-Sized Plumbing Saves Money, Saves Water, and Protects Wellness

    Webinar

    Register for Free
  • Building Careers from the Ground Up: The IUPAT Floor Covering Apprenticeship and Training Program

    Webinar

    Register for Free
All Events