Harbert Cottage, Harbert, Mich.

Grand / Renovation

2 MIN READ

Too often the emotional value of an existing structure is overlooked in a remodeling project, but not with the renovation of this 1940s cottage on Lake Michigan. Architect Gregory Howe worked hard to retain the spirit of the original ranch-style house, which held many memories for its owners and their close-knit group of neighbors.

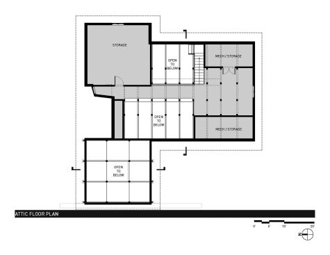
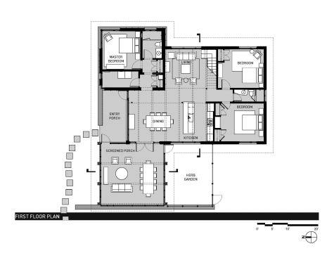
Instead of starting from scratch, Howe updated the home’s original layout, moving the kitchen to a central position and shifting the entry to the side, allowing the front yard to serve as a landscaped buffer to the street. Most of the existing foundation and about 40 percent of the perimeter walls were reused. Of the materials that could not be salvaged, more than 80 percent was diverted from landfills. In addition, the modest square footage of the house conserves both materials and energy consumption.

The renovation also provided an opportunity to modernize the house’s systems. The project team boosted energy performance with SIPs, a geothermal heat pump, radiant flooring, and high-performance windows and minimized the need for air conditioning by relying on operable windows positioned to allow for maximum cross ventilation. Clerestory openings both inside and at the screened porch generate the chimney effect to draw hot air up and out. Generous overhangs allow direct winter light to penetrate the house while shielding excessive summer heat.

The judges could not get over the way Howe added visual interest to the interiors by revealing—rather than concealing—the building’s guts. The core materials of the house’s construction define its character. Exposed builder-grade trusses, bolts, and screws; polished concrete slab floors; and overhead ductwork add to the charming, casual feel of this vacation getaway. “It’s a pretty amazing before and after,” they said.

On Site The 66-year-old cottage was rebuilt without gutters. Water flows evenly off the Galvalume roof and gables into a gravel “moat” that surrounds the house where it then slowly dissipates back to the site.

About the Author

Jennifer Goodman

Jennifer Goodman is a former editor for BUILDER. She lives in the walkable urban neighborhood of Silver Spring, Md.

Upcoming Events

  • Sales is a Sport: These Tactics Are the Winning Play

    Webinar

    Register for Free
  • Dispelling Myths and Maximizing Value: Unlock the Potential of Open Web Floor Trusses

    Webinar

    Register for Free
  • Building Future-ready Communities for Less

    Webinar

    Register for Free
All Events