Hillside Residence Kitchen

Grand: Custom Kitchen in a House Less Than 3,000 Square Feet / Alterstudio

1 MIN READ

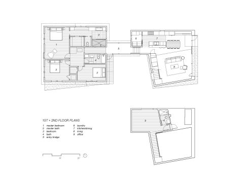
Some additions are quiet augmentations of what was already there. Yet others transform and reinvent the existing structure completely. Such is the case with the thousand-some square feet added onto the kitchen-centric Hillside Residence. “A sensible and thoughtful layout” doable for most homeowners, said the jury of the project, adding that the “even-handedness with space and judicious use of materials” resulted in a smart addition.

A glass bridge connects private and public functions of the house, with a galley kitchen that opens itself up to the rest of the living space. “The floor plan is spectacular,” said the jury, who appreciated the design’s ability to encourage simultaneous activity—cooking, supervising homework, and spending time with guests—while allowing the cook’s space to be a “sacred, clearly demarcated work zone that’s a central part of the home’s activity and circulation.”

As stylish as it is high-function, the work island anchoring this galley kitchen is covered on three sides with Carrara marble, waterfall-style. Contrasting with the marble’s elegance is long-leaf pine on both the island’s recessed panel and its tabletop; the beams were reclaimed from the floor joists of the original bungalow structure. Wine storage is tucked underneath.

A sliding panel allows wall shelves to function as open storage, or as a hidden pantry. The new addition, a block of black, contrasts with the white of the original house. In the kitchen, shiny surfaces play off rustic ones, and the room embodies the overall goal of seamlessly melding the interior with the exterior—no small trick for such an extensive remodel.

About the Author

Amy Albert

Amy Albert is editor of Custom Home and a senior editor at Builder. She covers all aspects of design. Previously, she was kitchen design editor at Bon Appetit; before that, she was senior editor at Fine Cooking, where she shot, edited, and wrote stories on kitchen design. Amy studied art history with an emphasis on architecture and urban design at the University of Pennsylvania. She lives in Los Angeles. Write her at aalbert@hanleywood.com, follow her on Twitter @CustomHomeMag and @amyatbuilder, or join her on Custom Home's Facebook page. 

Upcoming Events

  • Happier Homebuyers, Higher Profits: Specifying Fireplaces for Today’s Homes

    Webinar

    Register for Free
  • Sales is a Sport: These Tactics Are the Winning Play

    Webinar

    Register for Free
  • Dispelling Myths and Maximizing Value: Unlock the Potential of Open Web Floor Trusses

    Webinar

    Register for Free
All Events