House for Locavore Farmers, Geyserville, Calif.

Renovation

2 MIN READ

A few bold, and sometimes counterintuitive, moves utterly transform the character of this Northern California residence. Given the building’s spectacular hillside site, architect Wendy Evans Joseph says, “The intention was to make this place more in tune with the landscape and not necessarily bigger.” Joseph replaced a large swath of north-facing wall with glass and wrapped the building in a screen of narrow ipe slats that dramatically alters its profile. “You really don’t see the existing sloping roof from any perspective,” she notes.

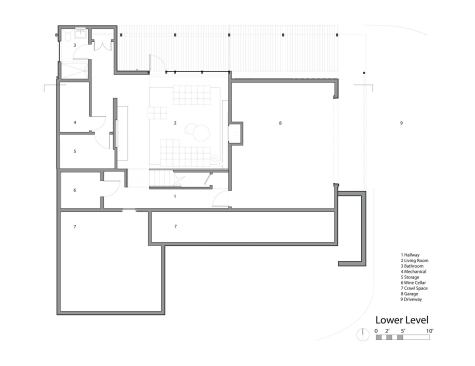
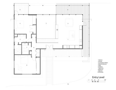
To improve a prosaic living room, Joseph simply removed the floor, opening a dramatic two-story space at the core of the house. Flush white oak millwork bridges the two levels, unifying an interior that, as she points out, “is actually smaller than it was. But it feels bigger; you see everything from everywhere.” Our jury liked what they saw, calling the project “a powerful renovation; very creative, very nice spatially.” As one judge remarked, “It’s taking [the original house] a long way, but it’s got so much of the existing structure intact.”


Entrant/Architect: Cooper Joseph Studio, New York; Builder: Redhorse Constructors, San Rafael, Calif.; Landscape architect: Jacobsen Landscaping, Cloverdale, Calif.; Structural engineer: Tysinger & Associates, Novato, Calif.; Living space: 2,700 square feet; Site: 25 acres; Construction cost: Withheld; Photographer: Elliott Kaufman.


Product details

Bathroom and kitchen fittings: Kohler, www.kohler.com; Bathroom fixtures: Julien, www.julien.ca; Countertops: Silestone, www.silestone.com; Garbage disposer: InSinkErator, www.insinkerator.com; Lighting fixtures: Bega, www.bega-us.com, Rambusch, www.rambusch.com, Lightolier, www.lightolier.com, Delray, www.delraylighting.com, Artemide, www.artemide.us, RSA, www.rsalighting.com, Lucifer, www.luciferlighting.com; Range: Viking www.vikingrange.com; Paints/stains/wall finishes: Benjamin Moore, www.benjaminmoore.com; Refrigerator: Sub-Zero, www.subzero.com; Solar energy system: SunPower, us.sunpowercorp.com

Learn more about markets featured in this article: Los Angeles, CA.

About the Author

Bruce D. Snider

Bruce Snider is a former senior contributing editor of  Residential Architect, a frequent contributor to Remodeling. 

Upcoming Events

  • Protecto Wall VP Standard Installation Video

    Webinar

    Register for Free
  • How Right-Sized Plumbing Saves Money, Saves Water, and Protects Wellness

    Webinar

    Register for Free
  • Building Careers from the Ground Up: The IUPAT Floor Covering Apprenticeship and Training Program

    Webinar

    Register for Free
All Events