Hover House 2, Los Angeles

Custom Home / More Than 5,000 Square Feet

1 MIN READ

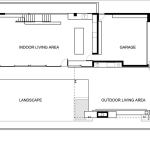
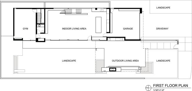
Light and air playfully permeate every level of this house, from the slatted “tree house” floating above the living room, to wrap-around clerestories and a second-story glass bridge. To preserve usable outdoor space—a precious commodity on this small urban lot—architect Glen Irani developed a two-story bar that hugs the lot’s long edge. A perpendicular second-story arm shelters an outdoor living terrace at the entryway, giving the major rooms garden access and eliminating the gratuitous front yard.

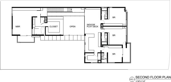
Four bedrooms upstairs are tucked under a stainless-steel-clad roof, which folds down over high glazing for privacy from taller neighbors. “There’s always some light creeping around the edges of the roof,” Irani says. “The roof doesn’t sit hard on the building, but feels like a soft blanket protecting your head from the elements.”

Natural materials underscore the landscape connection. The house is clad in deeply tinted cement plaster, and the refined al fresco living room has a bleached walnut ceiling, basalt stone fireplace, and French limestone flooring. The judges admired the terrace and its placement, also noting that the house’s details are “executed very well, and nothing seems overdone.”


Entrant/Architect: Glen Irani Architects, Venice, Calif.; Builder: Irani / Projects Inc., Venice; Interior designer: Jeffrey Jurasky & Associates, Palm Springs, Calif.; Living space: 5,388 square feet; Site: 0.19 acre; Construction cost: $525 per square foot; Photographer: Derek Rath.


Product details

Bathroom and kitchen cabinets and countertops: Advanced Cabinets, www.advancedcabinetscorp.com; Bathroom fittings: Boffi, www.boffi-la.com; Bathroom fixtures: Dornbrachet, www.dornbracht.com; Dishwasher: Bosch, www.bosch-home.com/us; Garage doors: Anaheim Door, www.anaheimdoor.com; Lighting fixtures: Halo, www.haloltg.com, Lightolier, www.lightolier.com, Lucifer, www.luciferlighting.com; Oven: Miele. www.mieleusa.com; Refrigerator: Sub-Zero, www.subzero.com; Windows: American Glazing, www.americanglazing.com

Upcoming Events

  • Happier Homebuyers, Higher Profits: Specifying Fireplaces for Today’s Homes

    Webinar

    Register for Free
  • Sales is a Sport: These Tactics Are the Winning Play

    Webinar

    Register for Free
  • Dispelling Myths and Maximizing Value: Unlock the Potential of Open Web Floor Trusses

    Webinar

    Register for Free
All Events