Kiwi House, Baton Rouge, La.

Custom Home / Less Than 3,000 Square Feet

1 MIN READ

In the wake of Hurricane Katrina, Peggy and James Mitchell sheltered 40 New Orleans evacuees in their two-bedroom house in Baton Rouge, La., even after a falling tree demolished one of the bedrooms. When the dust settled, a family friend directed the good Samaritan couple to the design/build firm +one design and construction, which took on the task of providing a replacement dwelling at a cost they could afford. The result is this fresh, efficient, and livable take on a traditional local model.

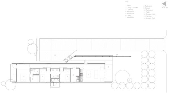
“It’s an interpretation of a shotgun house, which is a very efficient vernacular typology,” noted one of our jurors. Architect David Baird devoted house-width rooms to a living room/kitchen at the front of the building and a master bedroom at the rear. Between those two bookend spaces, secondary bedrooms, baths, and a laundry stack up along a side hall. High ceilings and a polished concrete floor facilitate cooling; a wooden privacy screen provides shade at the long side porch, while allowing breezes to blow through.


Entrant/Architect/Builder: +one design and construction, Baton Rouge, La.; Living space: 1,300 square feet; Site: 0.22 acre; Construction cost: $96 per square foot; Photographer: Kevin Duffy.


Product details

Bathroom and kitchen fittings and fixtures: Kohler, www.kohler.com; Countertops: Wilsonart, www.wilsonart.com; Dishwasher and range: KitchenAid, www.kitchenaid.com; Exterior siding: James Hardie, www.jameshardie.com; Garbage disposer: InSinkErator, www.insinkerator.com; Hardware: Kwikset, www.kwikset.com; HVAC equipment: Trane, www.trane.com; Insulation: Owens Corning, www.owenscorning.com; Paints/stains/wall finishes: Sherwin-Williams, www.sherwin-williams.com; Refrigerator: General Electric, www.geappliances.com; Roofing: Berridge, www.berridge.com; Windows: General, www.generalwindowbatonrouge.com

Learn more about markets featured in this article: Baton Rouge, LA, New Orleans, LA.

About the Author

Bruce D. Snider

Bruce Snider is a former senior contributing editor of  Residential Architect, a frequent contributor to Remodeling. 

Upcoming Events

  • Protecto Wall VP Standard Installation Video

    Webinar

    Register for Free
  • How Right-Sized Plumbing Saves Money, Saves Water, and Protects Wellness

    Webinar

    Register for Free
  • Building Careers from the Ground Up: The IUPAT Floor Covering Apprenticeship and Training Program

    Webinar

    Register for Free
All Events