Kyle House, Brewster, Mass.

Custom Home / Less Than 3,000 Square Feet

2 MIN READ

The jury appreciated the modest scale and straightforward planning of this Cape Cod, Mass., house. “It carries its simplicity through to both the interior and the exterior,” said a judge. “It’s carefully thought out, even though it looks pretty simple.”

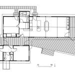
Architect James Estes divided the house into four separate buildings, each designed at the one-story scale of the neighborhood. A one-bedroom main house serves as the owner’s residence, and a two-bedroom guest house next door accommodates visiting family and friends. (The two structures are connected by a covered walkway.) An existing painting studio and a shed for bikes, boats, and kayaks complete the little shingled compound. A 110-foot-long boardwalk weaves through all four elements, tying them together while referencing the nearby Cape Cod beaches.

Rather than string the buildings along in a straight line, Estes arranged them around the site’s best feature, a grassy, tree-ringed area that faces northwest. “By cocking the angle, we were able to enclose the sweet spot and give the house more privacy,” he says. “The angle makes it more interesting.” Unadorned detailing throughout the project—such as 2x4s used as rafter tails, a sliding barn door on the street-facing shed, and standing seam metal roofs—suits the home’s low-key demeanor. “It’s no-nonsense,” said a judge approvingly.


Entrant/Architect: Estes/Twombly Architects, Newport, R.I.; Builder: Kendall & Welch, Osterville, Mass.; Living space: 1,344 square feet; Site: 0.4 acre; Construction cost: Withheld; Photographer: Warren Jagger Photography.


Resources: Bathroom cabinets/fittings and kitchen cabinets/fittings/fixtures: IKEA, www.ikea.com;Bathroom fixtures: Decolav, www.decolav.com;Cooktop/refrigerator: KitchenAid, www.kitchenaid.com;Countertops: 3form, www.3-form.com;Dishwasher: Bosch, www.bosch-home.com;Flooring (tile): American Olean, www.americanolean.com;Hardware: Schlage, www.schlage.com;HVAC equipment: Westinghouse, www.westinghouse.com;Insulation: Icynene, www.icynene.com;Lighting fixtures: Lightolier, www.lightolier.com, RAB, www.rabweb.com, LBL, www.lbllighting.com; Paints/stains/wall finishes: Benjamin Moore, www.benjaminmoore.com;Roofing: Englert, www.englertinc.com;Skylights/roof windows: Velux, www.veluxusa.com;Windows: Eagle, www.eaglewindow.com

About the Author

Upcoming Events

  • Happier Homebuyers, Higher Profits: Specifying Fireplaces for Today’s Homes

    Webinar

    Register for Free
  • Sales is a Sport: These Tactics Are the Winning Play

    Webinar

    Register for Free
  • Dispelling Myths and Maximizing Value: Unlock the Potential of Open Web Floor Trusses

    Webinar

    Register for Free
All Events